Elected Officials
Courts
Departments
Initiatives
Open Government
About
Login / Register
Home
/
Property & Tax Records
/
Property Records
/
Property & Tax Search
/
Parcel Profile
/
Print View
Search for Another Parcel
Parcel Profile
Historical Card
Sketches
Photos
Tax Map
Taxes
Print View
Print This Page
Address: 12938 PLANK RD
Parcel: 30001001000100
Parcel Profile
Address
12938 | PLANK | RD
Street Status
SEMI IMPROVED
School District
FORT LEBOEUF SCHOOL
Acreage
26.1400
Classification
F
Land Use Code
20 - 79.99 ACRES
Legal Description
12938 PLANK RD 26.148 AC
Square Feet
2088
Topo
LEVEL
Utility
WELL | SEPTIC
Zoning
Please contact your municipal zoning officer
Deed Book
1361
Deed Page
0203
2025 Tax Values
Land Value / Taxable
67,600 / 16,500.00
Building Value / Taxable
70,300 / 70,300.00
Total Value / Taxable
137,900 / 86,800.00
Clean & Green
Active
Homestead Status
Active
Farmstead Status
Inactive
Lerta Amount
0
Lerta Expiration Year
0
Residential Data
Card 1
Style
OLD STYLE
Basement
FULL
Year Built
1920
Exterior Wall
ALUMINUM/VINYL
Total Living Area
2088
Full Baths
2
Half Baths
0
Fuel Type
GAS
Heating
CENTRAL A/C
Heating System
FORCED AIR
Stories
2.0
Total Bedrooms
4
Total Family Rooms
1
Total Rooms
9
Fireplaces
1
Other Buildings & Yards
Description
Built
Width
Length
Area
BANK BARN
1900
30
36
1080
1S LEAN TO
1900
18
36
648
Sales History
Sale Date
Type
Price
Book / Page
Other Info
9/12/2006
LAND & BUILDING
250000
1361 / 0203
WARRANTY/SURVIVORSHIP DEED
11/12/1976
0
1244 / 0087
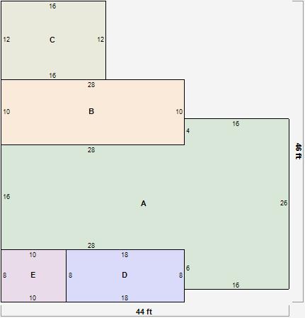
Parcel Sketches
Residential Card 1
A
MAIN
864 square feet
B
UNFIN BSMT BASEMENT UNFINISHED 1S FR ONE STORY FRAME
280 square feet
C
WDDCK WOOD DECKS
192 square feet
D
OFP OPEN FRAME PORCH
144 square feet
E
1S FR ONE STORY FRAME
80 square feet
Parcel Images