Elected Officials
Courts
Departments
Initiatives
Open Government
About
Login / Register
Home
/
Property & Tax Records
/
Property Records
/
Property & Tax Search
/
Parcel Profile
/
Print View
Search for Another Parcel
Parcel Profile
Historical Card
Sketches
Photos
Tax Map
Taxes
Print View
Print This Page
Address: 13513 OLD RT 19N
Parcel: 30004022000200
Parcel Profile
Address
13513 | OLD RT 19N
Street Status
PAVED
School District
FORT LEBOEUF SCHOOL
Acreage
2.2000
Classification
R
Land Use Code
SINGLE FAMILY
Legal Description
13513 OLD RT 19N 2.2 AC
Square Feet
1762
Topo
ABOVE STREET
Utility
WELL | SEPTIC
Zoning
Please contact your municipal zoning officer
Deed Book
1429
Deed Page
0088
2026 Tax Values
Land Value / Taxable
26,900 / 26,900.00
Building Value / Taxable
70,300 / 70,300.00
Total Value / Taxable
97,200 / 97,200.00
Clean & Green
Inactive
Homestead Status
Active
Farmstead Status
Inactive
Lerta Amount
0
Lerta Expiration Year
0
Residential Data
Card 1
Style
OLD STYLE
Basement
FULL
Year Built
1890
Exterior Wall
ALUMINUM/VINYL
Total Living Area
1762
Full Baths
1
Half Baths
0
Fuel Type
OIL
Heating
CENTRAL
Heating System
FORCED AIR
Stories
1.5
Total Bedrooms
3
Total Family Rooms
0
Total Rooms
7
Fireplaces
0
Other Buildings & Yards
Description
Built
Width
Length
Area
FRAME OR CB DETACHED GARAGE
1986
24
30
720
Sales History
Sale Date
Type
Price
Book / Page
Other Info
8/3/1981
0
1429 / 0088
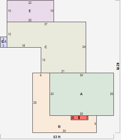
Parcel Sketches
Residential Card 1
A
MAIN
600 square feet
B
OFP OPEN FRAME PORCH
400 square feet
C
1S FR ONE STORY FRAME
696 square feet
D
OFP OPEN FRAME PORCH
15 square feet
E
EFP ENCL FRAME PORCH
220 square feet
F
FRBAY FRAME BAY
16 square feet
Parcel Images
Please note:
this tab is for informational purposes only and may not show all delinquencies, see the Taxes tab for more accurate delinquent taxes due.