Elected Officials
Courts
Departments
Initiatives
Open Government
About
Login / Register
Home
/
Property & Tax Records
/
Property Records
/
Property & Tax Search
/
Parcel Profile
/
Print View
Search for Another Parcel
Parcel Profile
Historical Card
Sketches
Photos
Tax Map
Taxes
Print View
Print This Page
Address: 2980 STONE QUARRY RD
Parcel: 30005035001200
Parcel Profile
Address
2980 | STONE QUARRY | RD
Street Status
UNPAVED
School District
FORT LEBOEUF SCHOOL
Acreage
23.8000
Classification
F
Land Use Code
20 - 79.99 ACRES
Legal Description
2980 STONE QUARRY RD 23.8 AC
Square Feet
2224
Topo
LEVEL
Utility
WELL | SEPTIC
Zoning
Please contact your municipal zoning officer
Deed Book
1597
Deed Page
0280
2026 Tax Values
Land Value / Taxable
47,500 / 15,800.00
Building Value / Taxable
123,700 / 123,700.00
Total Value / Taxable
171,200 / 139,500.00
Clean & Green
Active
Homestead Status
Inactive
Farmstead Status
Inactive
Lerta Amount
0
Lerta Expiration Year
0
Residential Data
Card 1
Style
OLD STYLE
Basement
FULL
Year Built
1908
Exterior Wall
ALUMINUM/VINYL
Total Living Area
2224
Full Baths
1
Half Baths
1
Fuel Type
OIL
Heating
CENTRAL
Heating System
FORCED AIR
Stories
2.0
Total Bedrooms
5
Total Family Rooms
0
Total Rooms
10
Fireplaces
0
Other Buildings & Yards
Description
Built
Width
Length
Area
ONE SIDE OPEN WD POLE BLDG
1950
20
42
840
BANK BARN
1900
42
48
2016
ATTACHED CB MILK HOUSE
1900
12
14
168
1S LEAN TO
1900
20
48
960
FOUR SIDE CLOSED MTL POLE BLDG
2020
60
96
5760
1S LEAN TO
2020
15
96
1440
Sales History
Sale Date
Type
Price
Book / Page
Other Info
10/14/2009
LAND & BUILDING
0
1597 / 0280
WARRANTY/SURVIVORSHIP DEED
11/1/1982
0
1475 / 0093
Parcel Sketches
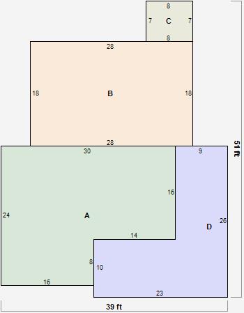
Residential Card 1
A
MAIN
608 square feet
B
UNFIN BSMT BASEMENT UNFINISHED 1S FR ONE STORY FRAME 1S FR ONE STORY FRAME
504 square feet
C
OFP OPEN FRAME PORCH
56 square feet
D
OFP OPEN FRAME PORCH
374 square feet
Parcel Images
Please note:
this tab is for informational purposes only and may not show all delinquencies, see the Taxes tab for more accurate delinquent taxes due.