Elected Officials
Courts
Departments
Initiatives
Open Government
About
Login / Register
Home
/
Property & Tax Records
/
Property Records
/
Property & Tax Search
/
Parcel Profile
/
Print View
Search for Another Parcel
Parcel Profile
Historical Card
Sketches
Photos
Tax Map
Taxes
Print View
Print This Page
Address: 3355 STONE QUARRY RD
Parcel: 30010051000200
Parcel Profile
Address
3355 | STONE QUARRY | RD
Street Status
UNPAVED
School District
FORT LEBOEUF SCHOOL
Acreage
16.3100
Classification
F
Land Use Code
10-19.99 ACRES
Legal Description
3355 STONE QUARRY RD 16.31 AC
Square Feet
2158
Topo
LEVEL
Utility
WELL | SEPTIC
Zoning
Please contact your municipal zoning officer
Deed Book
2010
Deed Page
011080
2026 Tax Values
Land Value / Taxable
44,900 / 44,900.00
Building Value / Taxable
49,600 / 49,600.00
Total Value / Taxable
94,500 / 94,500.00
Clean & Green
Inactive
Homestead Status
Active
Farmstead Status
Inactive
Lerta Amount
0
Lerta Expiration Year
0
Residential Data
Card 1
Style
OLD STYLE
Basement
PART
Year Built
1856
Exterior Wall
FRAME
Total Living Area
2158
Full Baths
1
Half Baths
0
Fuel Type
PROPANE
Heating
CENTRAL
Heating System
FORCED AIR
Stories
2.0
Total Bedrooms
4
Total Family Rooms
0
Total Rooms
8
Fireplaces
0
Other Buildings & Yards
Description
Built
Width
Length
Area
FLAT BARN
1992
35
45
1575
Sales History
Sale Date
Type
Price
Book / Page
Other Info
5/17/2010
LAND & BUILDING
0
2010 / 011080
WARRANTY/SURVIVORSHIP DEED
10/13/1951
0
0607 / 0383
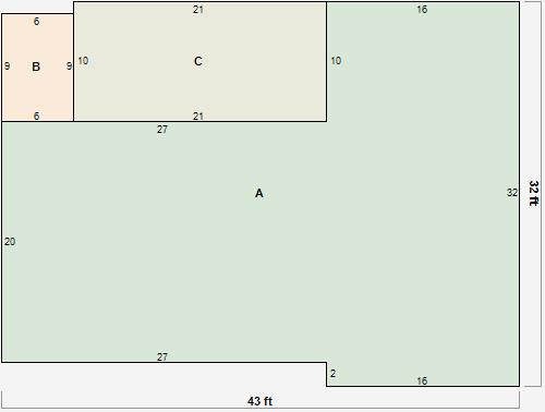
Parcel Sketches
Residential Card 1
A
MAIN
1052 square feet
B
1S FR ONE STORY FRAME
54 square feet
C
EFP ENCL FRAME PORCH
210 square feet
Parcel Images
Please note:
this tab is for informational purposes only and may not show all delinquencies, see the Taxes tab for more accurate delinquent taxes due.