Elected Officials
Courts
Departments
Initiatives
Open Government
About
Login / Register
Home
/
Property & Tax Records
/
Property Records
/
Property & Tax Search
/
Parcel Profile
/
Print View
Search for Another Parcel
Parcel Profile
Historical Card
Sketches
Photos
Tax Map
Taxes
Print View
Print This Page
Address: 4411 OLD MEADVILLE RD
Parcel: 30019085000301
Parcel Profile
Address
4411 | OLD MEADVILLE | RD
Street Status
UNPAVED
School District
FORT LEBOEUF SCHOOL
Acreage
99.8900
Classification
F
Land Use Code
80 ACRES OR MORE
Legal Description
4411 OLD MEADVILLE RD 99.894 AC
Square Feet
1494
Topo
LEVEL
Utility
WELL | SEPTIC
Zoning
Please contact your municipal zoning officer
Deed Book
0044
Deed Page
2101
2026 Tax Values
Land Value / Taxable
143,700 / 53,800.00
Building Value / Taxable
104,500 / 104,500.00
Total Value / Taxable
248,200 / 158,300.00
Clean & Green
Active
Homestead Status
Active
Farmstead Status
Active
Lerta Amount
0
Lerta Expiration Year
0
Residential Data
Card 1
Style
SPLIT FOYER
Basement
FULL
Year Built
1988
Exterior Wall
ALUMINUM/VINYL
Total Living Area
1494
Full Baths
2
Half Baths
0
Fuel Type
PROPANE
Heating
CENTRAL
Heating System
FORCED AIR
Stories
1.0
Total Bedrooms
3
Total Family Rooms
0
Total Rooms
6
Fireplaces
0
Other Buildings & Yards
Description
Built
Width
Length
Area
FOUR SIDE CLOSED MTL POLE BLDG
2000
24
32
768
FOUR SIDE CLOSED MTL POLE BLDG
1971
50
59
2950
WOOD BOARD CORN CRIB
1995
26
42
1092
Sales History
Sale Date
Type
Price
Book / Page
Other Info
3/25/1988
0
0044 / 2101
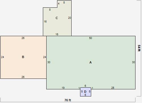
Parcel Sketches
Residential Card 1
A
MAIN
1494 square feet
B
FR GR FRAME GARAGE
624 square feet
C
WDDCK WOOD DECKS
288 square feet
D
MA STOOP/TERR MAS STOOP
30 square feet
Parcel Images
Please note:
this tab is for informational purposes only and may not show all delinquencies, see the Taxes tab for more accurate delinquent taxes due.