Elected Officials
Courts
Departments
Initiatives
Open Government
About
Login / Register
Home
/
Property & Tax Records
/
Property Records
/
Property & Tax Search
/
Parcel Profile
/
Print View
Search for Another Parcel
Parcel Profile
Historical Card
Sketches
Photos
Tax Map
Taxes
Print View
Print This Page
Address: 15190 HOLMES RD
Parcel: 30020086000901
Parcel Profile
Address
15190 | HOLMES | RD
Street Status
UNPAVED
School District
FORT LEBOEUF SCHOOL
Acreage
1.2000
Classification
R
Land Use Code
SINGLE FAMILY
Legal Description
15190 HOLMES RD 1.205 AC
Square Feet
1200
Topo
ROLLING
Utility
WELL | SEPTIC
Zoning
Please contact your municipal zoning officer
Deed Book
2010
Deed Page
002581
2026 Tax Values
Land Value / Taxable
24,500 / 24,500.00
Building Value / Taxable
60,530 / 60,530.00
Total Value / Taxable
85,030 / 85,030.00
Clean & Green
Inactive
Homestead Status
Active
Farmstead Status
Inactive
Lerta Amount
0
Lerta Expiration Year
0
Residential Data
Card 1
Style
OTHER
Basement
FULL
Year Built
1900
Exterior Wall
FRAME
Total Living Area
1200
Full Baths
1
Half Baths
0
Fuel Type
GAS
Heating
CENTRAL
Heating System
FORCED AIR
Stories
1.0
Total Bedrooms
2
Total Family Rooms
0
Total Rooms
4
Fireplaces
0
Other Buildings & Yards
No OBY Data Found
Sales History
Sale Date
Type
Price
Book / Page
Other Info
2/4/2010
LAND & BUILDING
90500
2010 / 002581
SPECIAL WARRANTY DEED
8/5/1988
0
0060 / 0023
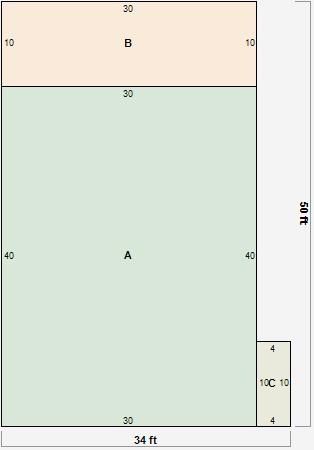
Parcel Sketches
Residential Card 1
A
MAIN
1200 square feet
B
FR UT FRAME UTILITY BUILDING WDDCK WOOD DECKS
300 square feet
C
MA STOOP/TERR MAS STOOP
40 square feet
Parcel Images
Please note:
this tab is for informational purposes only and may not show all delinquencies, see the Taxes tab for more accurate delinquent taxes due.