Elected Officials
Courts
Departments
Initiatives
Open Government
About
Login / Register
Home
/
Property & Tax Records
/
Property Records
/
Property & Tax Search
/
Parcel Profile
/
Print View
Search for Another Parcel
Parcel Profile
Historical Card
Sketches
Photos
Tax Map
Taxes
Print View
Print This Page
Address: 6615 ROUTE 6
Parcel: 30022091000600
Parcel Profile
Address
6615 | ROUTE 6
Street Status
PAVED
School District
FORT LEBOEUF SCHOOL
Acreage
94.4070
Classification
F
Land Use Code
80 ACRES OR MORE
Legal Description
6615 ROUTE 6 94.407 AC NET
Square Feet
1952
Topo
ROLLING
Utility
GAS | WELL | SEPTIC
Zoning
Please contact your municipal zoning officer
Deed Book
2011
Deed Page
024315
2026 Tax Values
Land Value / Taxable
117,100 / 75,800.00
Building Value / Taxable
105,520 / 105,520.00
Total Value / Taxable
222,620 / 181,320.00
Clean & Green
Active
Homestead Status
Active
Farmstead Status
Inactive
Lerta Amount
0
Lerta Expiration Year
0
Residential Data
Card 1
Style
OLD STYLE
Basement
FULL
Year Built
1905
Exterior Wall
ALUMINUM/VINYL
Total Living Area
1952
Full Baths
2
Half Baths
0
Fuel Type
GAS
Heating
CENTRAL
Heating System
FORCED AIR
Stories
2.0
Total Bedrooms
4
Total Family Rooms
0
Total Rooms
8
Fireplaces
0
Other Buildings & Yards
Description
Built
Width
Length
Area
FOUR SIDE CLOSED MTL POLE BLDG
1984
56
30
1680
BANK BARN
1900
40
46
1840
BANK BARN ADDITION
1905
30
46
1380
BANK BARN ADDITION
1905
20
70
1400
BANK BARN ADDITION
1900
8
30
240
ATTACHED CB MILK HOUSE
1960
12
16
192
FRAME UTILITY SHED
1960
10
12
120
FLAT BARN
1900
24
32
768
BANK BARN
1900
20
30
600
DETACHED CB MILK HOUSE
1960
8
9
72
CONCRETE STAVE WITH ROOF
1905
14
30
4616
Sales History
Sale Date
Type
Price
Book / Page
Other Info
10/12/2011
LAND & BUILDING
250000
2011 / 024315
SPECIAL WARRANTY DEED
7/21/2010
0
2010 / 017670
QUIT CLAIM DEED
3/7/1985
0
1571 / 0101
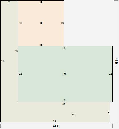
Parcel Sketches
Residential Card 1
A
MAIN
814 square feet
B
EFP ENCL FRAME PORCH 1S FR ONE STORY FRAME
324 square feet
C
OFP OPEN FRAME PORCH
624 square feet
Parcel Images
Please note:
this tab is for informational purposes only and may not show all delinquencies, see the Taxes tab for more accurate delinquent taxes due.