Elected Officials
Courts
Departments
Initiatives
Open Government
About
Login / Register
Home
/
Property & Tax Records
/
Property Records
/
Property & Tax Search
/
Parcel Profile
/
Print View
Search for Another Parcel
Parcel Profile
Historical Card
Sketches
Photos
Tax Map
Taxes
Print View
Print This Page
Address: 7393 ROUTE 6
Parcel: 30022091000700
Parcel Profile
Address
7393 | ROUTE 6
Street Status
PAVED
School District
FORT LEBOEUF SCHOOL
Acreage
2.7900
Classification
R
Land Use Code
SINGLE FAMILY
Legal Description
7393 ROUTE 6 2.79 AC
Square Feet
1392
Topo
ROLLING
Utility
WELL | SEPTIC
Zoning
Please contact your municipal zoning officer
Deed Book
1324
Deed Page
0435
2026 Tax Values
Land Value / Taxable
28,300 / 28,300.00
Building Value / Taxable
70,200 / 70,200.00
Total Value / Taxable
98,500 / 98,500.00
Clean & Green
Inactive
Homestead Status
Inactive
Farmstead Status
Inactive
Lerta Amount
0
Lerta Expiration Year
0
Residential Data
Card 1
Style
OLD STYLE
Basement
FULL
Year Built
1900
Exterior Wall
ALUMINUM/VINYL
Total Living Area
1392
Full Baths
1
Half Baths
0
Fuel Type
OIL
Heating
CENTRAL
Heating System
FORCED AIR
Stories
1.5
Total Bedrooms
3
Total Family Rooms
0
Total Rooms
6
Fireplaces
1
Other Buildings & Yards
Description
Built
Width
Length
Area
FRAME OR CB DETACHED GARAGE
1982
20
24
480
FOUR SIDE CLOSED WD POLE BLDG
2007
30
48
1440
Sales History
Sale Date
Type
Price
Book / Page
Other Info
5/1/2006
LAND & BUILDING
80000
1324 / 0435
WARRANTY/SURVIVORSHIP DEED
8/30/1995
LAND & BUILDING
64000
401 / 350
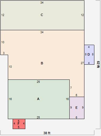
Parcel Sketches
Residential Card 1
A
MAIN
400 square feet
B
1S FR ONE STORY FRAME
692 square feet
C
FR UT FRAME UTILITY BUILDING
408 square feet
D
MA STOOP/TERR MAS STOOP
32 square feet
E
OFP OPEN FRAME PORCH
54 square feet
F
MA STOOP/TERR MAS STOOP
20 square feet
Parcel Images
Please note:
this tab is for informational purposes only and may not show all delinquencies, see the Taxes tab for more accurate delinquent taxes due.