Address: 7000 OLD MEADVILLE RD   Parcel: 30022091001100
Parcel Profile
Address7000 | OLD MEADVILLE | RD
Street StatusUNPAVED
School DistrictFORT LEBOEUF SCHOOL
Acreage58.6800
ClassificationF
Land Use Code20 - 79.99 ACRES
Legal Description7000 OLD MEADVILLE RD 58.686 AC
Square Feet2624
TopoROLLING
UtilityGAS | WELL | SEPTIC
ZoningPlease contact your municipal zoning officer
Deed Book0431
Deed Page0906
2026 Tax Values
Land Value / Taxable84,200 / 84,200.00
Building Value / Taxable65,600 / 65,600.00
Total Value / Taxable149,800 / 149,800.00
Clean & GreenInactive
Homestead StatusActive
Farmstead StatusInactive
Lerta Amount0
Lerta Expiration Year0
Residential Data
Card 1
     StyleOLD STYLE
     BasementNONE
     Year Built1890
     Exterior WallCOMPOSITION
     Total Living Area2624
     Full Baths2
     Half Baths0
     Fuel TypePROPANE
     HeatingCENTRAL
     Heating SystemHOT WATER
     Stories2.0
     Total Bedrooms4
     Total Family Rooms0
     Total Rooms7
     Fireplaces0
Other Buildings & Yards
DescriptionBuiltWidthLengthArea
 FLAT BARN 1900 24 26 624
 FOUR SIDE CLOSED MTL POLE BLDG 1979 40 100 4000
 FOUR SIDE CLOSED MTL POLE BLDG 1973 40 66 2640
 CONCRETE STAVE WITH ROOF 1950 18 50 12717
 FLAT BARN ADDITION 1920 30 30 900
 ATTACHED CB MILK HOUSE 1930 11 16 176
Sales History
Sale DateTypePriceBook / PageOther Info
4/1/1996 00431 / 0906 
7/31/1995LAND & BUILDING87500395 / 1793 



Parcel Sketches

Residential Card 1

Residential Card 1
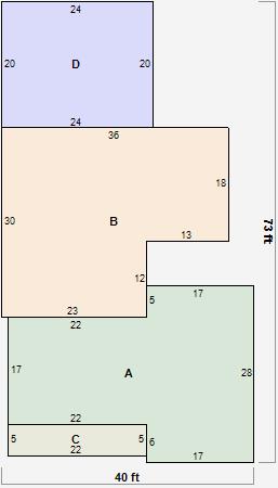
AMAIN850 square feet
B 1S FR ONE STORY FRAME 924 square feet
C OFP OPEN FRAME PORCH 110 square feet
D WDDCK WOOD DECKS 480 square feet

Parcel Images

parcel photoparcel photoparcel photoparcel photoparcel photoparcel photo