Elected Officials
Courts
Departments
Initiatives
Open Government
About
Login / Register
Home
/
Property & Tax Records
/
Property Records
/
Property & Tax Search
/
Parcel Profile
/
Print View
Search for Another Parcel
Parcel Profile
Historical Card
Sketches
Photos
Tax Map
Taxes
Print View
Print This Page
Address: 16022 UNION LEBOEUF RD
Parcel: 30023092000500
Parcel Profile
Address
16022 | UNION LEBOEUF | RD
Street Status
UNPAVED
School District
FORT LEBOEUF SCHOOL
Acreage
38.0000
Classification
F
Land Use Code
20 - 79.99 ACRES
Legal Description
16022 UNION LEBOEUF RD 38 AC
Square Feet
1872
Topo
LEVEL
Utility
WELL | SEPTIC
Zoning
Please contact your municipal zoning officer
Deed Book
2010
Deed Page
009837
2026 Tax Values
Land Value / Taxable
82,400 / 82,400.00
Building Value / Taxable
38,430 / 38,430.00
Total Value / Taxable
120,830 / 120,830.00
Clean & Green
Inactive
Homestead Status
Inactive
Farmstead Status
Inactive
Lerta Amount
0
Lerta Expiration Year
0
Residential Data
Card 1
Style
OLD STYLE
Basement
FULL
Year Built
1868
Exterior Wall
ALUMINUM/VINYL
Total Living Area
1872
Full Baths
1
Half Baths
0
Fuel Type
GAS
Heating
CENTRAL
Heating System
FORCED AIR
Stories
2.0
Total Bedrooms
3
Total Family Rooms
1
Total Rooms
7
Fireplaces
0
Other Buildings & Yards
Description
Built
Width
Length
Area
FRAME UTILITY SHED
1868
12
12
144
FLAT BARN
1868
32
38
1216
FLAT BARN
1868
32
66
2112
FLAT BARN ADDITION
1868
8
32
256
Sales History
Sale Date
Type
Price
Book / Page
Other Info
5/3/2010
LAND & BUILDING
103000
2010 / 009837
DEED
7/18/2003
LAND & BUILDING
0
1037 / 1396
QUIT CLAIM DEED
3/13/1973
0
1090 / 0662
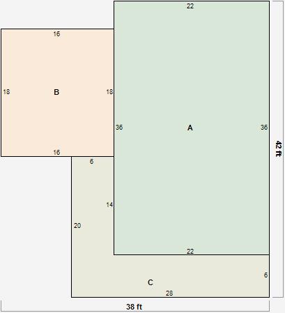
Parcel Sketches
Residential Card 1
A
MAIN
792 square feet
B
1S FR ONE STORY FRAME AT UN ATTIC-UNFINISHED
288 square feet
C
OFP OPEN FRAME PORCH
252 square feet
Parcel Images
Please note:
this tab is for informational purposes only and may not show all delinquencies, see the Taxes tab for more accurate delinquent taxes due.