Elected Officials
Courts
Departments
Initiatives
Open Government
About
Login / Register
Home
/
Property & Tax Records
/
Property Records
/
Property & Tax Search
/
Parcel Profile
/
Print View
Search for Another Parcel
Parcel Profile
Historical Card
Sketches
Photos
Tax Map
Taxes
Print View
Print This Page
Address: 6145 BUMAN RD
Parcel: 31001020000800
Parcel Profile
Address
6145 | BUMAN | RD
Street Status
PAVED
School District
GENERAL MCLANE SCHOOL
Acreage
41.2650
Classification
F
Land Use Code
20 - 79.99 ACRES
Legal Description
6145 BUMAN RD 41.265 AC
Square Feet
3263
Topo
LEVEL
Utility
GAS | WELL | SEPTIC
Zoning
Please contact your municipal zoning officer
Deed Book
0534
Deed Page
1026
2026 Tax Values
Land Value / Taxable
121,700 / 28,700.00
Building Value / Taxable
180,500 / 180,500.00
Total Value / Taxable
302,200 / 209,200.00
Clean & Green
Active
Homestead Status
Active
Farmstead Status
Active
Lerta Amount
0
Lerta Expiration Year
0
Residential Data
Card 1
Style
CONVENTIONAL
Basement
FULL
Year Built
1932
Exterior Wall
BRICK
Total Living Area
3263
Full Baths
2
Half Baths
1
Fuel Type
GAS
Heating
CENTRAL A/C
Heating System
FORCED AIR
Stories
2.0
Total Bedrooms
3
Total Family Rooms
0
Total Rooms
6
Fireplaces
1
Other Buildings & Yards
Description
Built
Width
Length
Area
FRAME OR CB DETACHED GARAGE
2010
40
30
1200
CARPORT
2010
16
30
480
FRAME UTILITY SHED
1935
17
50
850
FLAT BARN
1932
20
41
820
FLAT BARN ADDITION
1932
15
30
450
FLAT BARN ADDITION
1932
12
12
144
1S LEAN TO
1932
10
41
410
Sales History
Sale Date
Type
Price
Book / Page
Other Info
12/17/1997
0
0534 / 1026
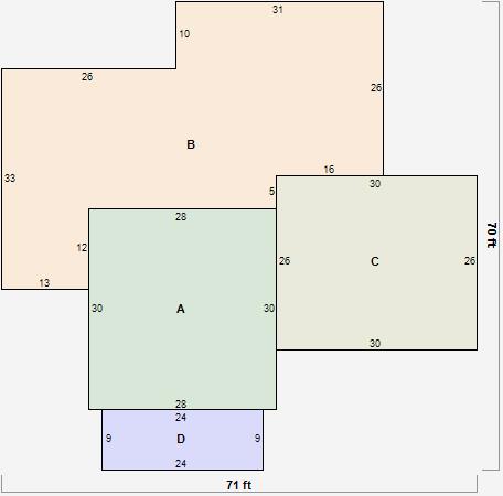
Parcel Sketches
Residential Card 1
A
MAIN
840 square feet
B
1SMAS MASONRY
1583 square feet
C
MG/BG MASONRY/BRICK GARAGE
780 square feet
D
OMP OPEN MASONRY PORCH
216 square feet
Parcel Images
Please note:
this tab is for informational purposes only and may not show all delinquencies, see the Taxes tab for more accurate delinquent taxes due.