Elected Officials
Courts
Departments
Initiatives
Open Government
About
Login / Register
Home
/
Property & Tax Records
/
Property Records
/
Property & Tax Search
/
Parcel Profile
/
Print View
Search for Another Parcel
Parcel Profile
Historical Card
Sketches
Photos
Tax Map
Taxes
Print View
Print This Page
Address: 6870 STERRETTANIA RD
Parcel: 31001021000800
Parcel Profile
Address
6870 | STERRETTANIA | RD
Street Status
PAVED
School District
GENERAL MCLANE SCHOOL
Acreage
1.4240
Classification
R
Land Use Code
SINGLE FAMILY
Legal Description
6870 STERRETTANIA RD 1.424AC
Square Feet
1824
Topo
LEVEL
Utility
GAS | WELL | SEPTIC
Zoning
Please contact your municipal zoning officer
Deed Book
2025
Deed Page
020046
2026 Tax Values
Land Value / Taxable
37,500 / 37,500.00
Building Value / Taxable
114,160 / 114,160.00
Total Value / Taxable
151,660 / 151,660.00
Clean & Green
Inactive
Homestead Status
Active
Farmstead Status
Inactive
Lerta Amount
0
Lerta Expiration Year
0
Residential Data
Card 1
Style
OLD STYLE
Basement
FULL
Year Built
1860
Exterior Wall
COMPOSITION
Total Living Area
1824
Full Baths
1
Half Baths
1
Fuel Type
GAS
Heating
CENTRAL
Heating System
HOT WATER
Stories
2.0
Total Bedrooms
4
Total Family Rooms
0
Total Rooms
8
Fireplaces
0
Other Buildings & Yards
Description
Built
Width
Length
Area
FRAME OR CB DETACHED GARAGE
1960
38
40
1520
Sales History
Sale Date
Type
Price
Book / Page
Other Info
11/10/2025
LAND & BUILDING
337500
2025 / 020046
SPECIAL WARRANTY DEED
4/2/2007
LAND & BUILDING
0
1405 / 1568
WARRANTY/SURVIVORSHIP DEED
11/4/2005
LAND & BUILDING
0
1284 / 1747
QUIT CLAIM DEED
1/29/2001
LAND & BUILDING
130000
749 / 1891
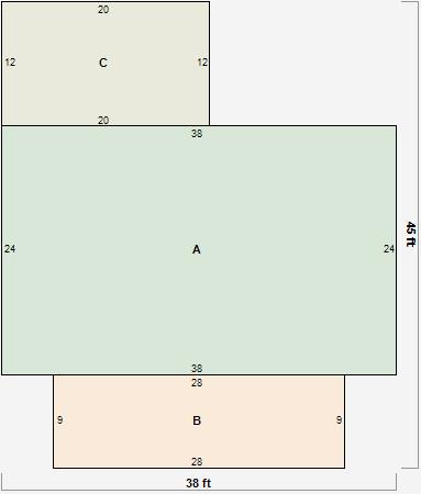
Parcel Sketches
Residential Card 1
A
MAIN
912 square feet
B
OFP OPEN FRAME PORCH
252 square feet
C
EFP ENCL FRAME PORCH
240 square feet
Parcel Images
Please note:
this tab is for informational purposes only and may not show all delinquencies, see the Taxes tab for more accurate delinquent taxes due.