Elected Officials
Courts
Departments
Initiatives
Open Government
About
Login / Register
Home
/
Property & Tax Records
/
Property Records
/
Property & Tax Search
/
Parcel Profile
/
Print View
Search for Another Parcel
Parcel Profile
Historical Card
Sketches
Photos
Tax Map
Taxes
Print View
Print This Page
Address: 5499 PINETREE RD
Parcel: 31002004001600
Parcel Profile
Address
5499 | PINETREE | RD
Street Status
PAVED
School District
GENERAL MCLANE SCHOOL
Acreage
2.6890
Classification
R
Land Use Code
SINGLE FAMILY
Legal Description
5499 PINETREE RD LOT A 2.689 AC
Square Feet
2100
Topo
ROLLING
Utility
WELL | SEPTIC
Zoning
Please contact your municipal zoning officer
Deed Book
2020
Deed Page
023111
2026 Tax Values
Land Value / Taxable
42,100 / 42,100.00
Building Value / Taxable
89,050 / 89,050.00
Total Value / Taxable
131,150 / 131,150.00
Clean & Green
Inactive
Homestead Status
Inactive
Farmstead Status
Inactive
Lerta Amount
0
Lerta Expiration Year
0
Residential Data
Card 1
Style
OLD STYLE
Basement
FULL
Year Built
1868
Exterior Wall
FRAME
Total Living Area
2100
Full Baths
1
Half Baths
1
Fuel Type
OIL
Heating
CENTRAL
Heating System
HOT WATER
Stories
2.0
Total Bedrooms
4
Total Family Rooms
1
Total Rooms
7
Fireplaces
0
Other Buildings & Yards
Description
Built
Width
Length
Area
FRAME UTILITY SHED
1868
20
25
500
BANK BARN
1868
35
45
1575
FOUR SIDE CLOSED MTL POLE BLDG
1976
50
100
5000
ONE SIDE OPEN MTL POLE BLDG
1976
18
100
1800
1S LEAN TO
2001
14
50
700
BANK BARN ADDITION
1868
20
25
500
Sales History
Sale Date
Type
Price
Book / Page
Other Info
10/30/2020
LAND & BUILDING
115000
2020 / 023111
DEED
12/2/2015
LAND & BUILDING
0
2015 / 026438
QUIT/CLAIM SURVIVORSHIP
7/15/2014
LAND & BUILDING
0
2014 / 014370
FIDUCIARY DEED
3/26/1970
0
1019 / 0565
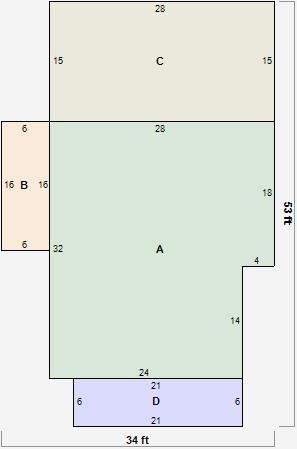
Parcel Sketches
Residential Card 1
A
MAIN
840 square feet
B
EFP ENCL FRAME PORCH
96 square feet
C
1S FR ONE STORY FRAME AT UN ATTIC-UNFINISHED
420 square feet
D
OFP OPEN FRAME PORCH
126 square feet
Parcel Images
Please note:
this tab is for informational purposes only and may not show all delinquencies, see the Taxes tab for more accurate delinquent taxes due.