Elected Officials
Courts
Departments
Initiatives
Open Government
About
Login / Register
Home
/
Property & Tax Records
/
Property Records
/
Property & Tax Search
/
Parcel Profile
/
Print View
Search for Another Parcel
Parcel Profile
Historical Card
Sketches
Photos
Tax Map
Taxes
Print View
Print This Page
Address: 7116 GRUBB RD
Parcel: 31002005000400
Parcel Profile
Address
7116 | GRUBB | RD
Street Status
PAVED
School District
GENERAL MCLANE SCHOOL
Acreage
1.2460
Classification
R
Land Use Code
SINGLE FAMILY
Legal Description
7116 GRUBB RD 1.246AC
Square Feet
2062
Topo
ROLLING
Utility
WELL | SEPTIC
Zoning
Please contact your municipal zoning officer
Deed Book
0734
Deed Page
1291
2026 Tax Values
Land Value / Taxable
36,900 / 36,900.00
Building Value / Taxable
112,410 / 112,410.00
Total Value / Taxable
149,310 / 149,310.00
Clean & Green
Inactive
Homestead Status
Active
Farmstead Status
Inactive
Lerta Amount
0
Lerta Expiration Year
0
Residential Data
Card 1
Style
CAPE
Basement
FULL
Year Built
1931
Exterior Wall
ALUMINUM/VINYL
Total Living Area
2062
Full Baths
2
Half Baths
0
Fuel Type
GAS
Heating
CENTRAL
Heating System
HOT WATER
Stories
1.5
Total Bedrooms
4
Total Family Rooms
0
Total Rooms
10
Fireplaces
1
Other Buildings & Yards
Description
Built
Width
Length
Area
FRAME OR CB DETACHED GARAGE
1931
23
30
690
FLAT BARN
1986
32
32
1024
Sales History
Sale Date
Type
Price
Book / Page
Other Info
10/27/2000
LAND & BUILDING
140500
0734 / 1291
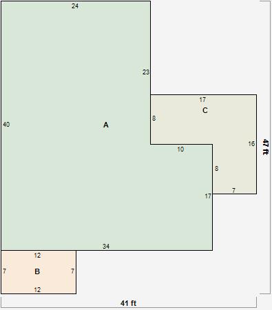
Parcel Sketches
Residential Card 1
A
MAIN
1130 square feet
B
1S FR ONE STORY FRAME
84 square feet
C
OFP OPEN FRAME PORCH
192 square feet
Parcel Images
Please note:
this tab is for informational purposes only and may not show all delinquencies, see the Taxes tab for more accurate delinquent taxes due.