Elected Officials
Courts
Departments
Initiatives
Open Government
About
Login / Register
Home
/
Property & Tax Records
/
Property Records
/
Property & Tax Search
/
Parcel Profile
/
Print View
Search for Another Parcel
Parcel Profile
Historical Card
Sketches
Photos
Tax Map
Taxes
Print View
Print This Page
Address: 3865 HERSHEY RD
Parcel: 31003007000108
Parcel Profile
Address
3865 | HERSHEY | RD
Street Status
PAVED
School District
GENERAL MCLANE SCHOOL
Acreage
7.1300
Classification
R
Land Use Code
SINGLE FAMILY
Legal Description
3865 HERSHEY RD 7.135 AC
Square Feet
2752
Topo
LEVEL
Utility
PUBLIC WATER | SEPTIC
Zoning
Please contact your municipal zoning officer
Deed Book
2020
Deed Page
024775
2025 Tax Values
Land Value / Taxable
46,500 / 46,500.00
Building Value / Taxable
108,200 / 108,200.00
Total Value / Taxable
154,700 / 154,700.00
Clean & Green
Inactive
Homestead Status
Inactive
Farmstead Status
Inactive
Lerta Amount
0
Lerta Expiration Year
0
Residential Data
Card 1
Style
OLD STYLE
Basement
FULL
Year Built
1887
Exterior Wall
ALUMINUM/VINYL
Total Living Area
1984
Full Baths
2
Half Baths
0
Fuel Type
PROPANE
Heating
CENTRAL
Heating System
FORCED AIR
Stories
2.0
Total Bedrooms
4
Total Family Rooms
1
Total Rooms
8
Fireplaces
1
Card 2
Style
OTHER
Basement
NONE
Year Built
1915
Exterior Wall
ALUMINUM/VINYL
Total Living Area
768
Full Baths
1
Half Baths
0
Fuel Type
GAS
Heating
CENTRAL
Heating System
FORCED AIR
Stories
2.0
Total Bedrooms
2
Total Family Rooms
1
Total Rooms
5
Fireplaces
0
Other Buildings & Yards
Description
Built
Width
Length
Area
BANK BARN
1915
22
30
660
FRAME UTILITY SHED
1990
14
17
238
Sales History
Sale Date
Type
Price
Book / Page
Other Info
11/17/2020
LAND & BUILDING
245000
2020 / 024775
SPECIAL WARRANTY DEED
10/11/1985
0
1601 / 0224
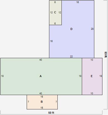
Parcel Sketches
Residential Card 1
A
MAIN
720 square feet
B
OFP OPEN FRAME PORCH
105 square feet
C
OFP OPEN FRAME PORCH
72 square feet
D
1S FR ONE STORY FRAME
544 square feet
E
EFP ENCL FRAME PORCH
180 square feet
Residential Card 2
A
MAIN
384 square feet
B
FR UT FRAME UTILITY BUILDING
99 square feet
Parcel Images