Elected Officials
Courts
Departments
Initiatives
Open Government
About
Login / Register
Home
/
Property & Tax Records
/
Property Records
/
Property & Tax Search
/
Parcel Profile
/
Print View
Search for Another Parcel
Parcel Profile
Historical Card
Sketches
Photos
Tax Map
Taxes
Print View
Print This Page
Address: 3207 REICHERT RD
Parcel: 31004036004900
Parcel Profile
Address
3207 | REICHERT | RD
Street Status
PAVED
School District
GENERAL MCLANE SCHOOL
Acreage
1.0399
Classification
R
Land Use Code
SINGLE FAMILY
Legal Description
3207 REICHERT RD 65 X 501.04
Square Feet
1801
Topo
LEVEL
Utility
GAS | WELL | SEPTIC
Zoning
Please contact your municipal zoning officer
Deed Book
1577
Deed Page
2036
2026 Tax Values
Land Value / Taxable
37,200 / 37,200.00
Building Value / Taxable
96,100 / 96,100.00
Total Value / Taxable
133,300 / 133,300.00
Clean & Green
Inactive
Homestead Status
Active
Farmstead Status
Inactive
Lerta Amount
0
Lerta Expiration Year
0
Residential Data
Card 1
Style
CONVENTIONAL
Basement
FULL
Year Built
1900
Exterior Wall
ALUMINUM/VINYL
Total Living Area
1801
Full Baths
1
Half Baths
0
Fuel Type
GAS
Heating
CENTRAL
Heating System
FORCED AIR
Stories
2.0
Total Bedrooms
3
Total Family Rooms
1
Total Rooms
7
Fireplaces
1
Other Buildings & Yards
Description
Built
Width
Length
Area
FRAME OR CB DETACHED GARAGE
1950
24
24
576
Sales History
Sale Date
Type
Price
Book / Page
Other Info
7/17/2009
LAND & BUILDING
119700
1577 / 2036
WARRANTY/SURVIVORSHIP DEED
1/31/1996
LAND & BUILDING
89900
422 / 1555
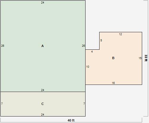
Parcel Sketches
Residential Card 1
A
MAIN
624 square feet
B
1S FR ONE STORY FRAME 1/2FR FRAME HALF-STORY
220 square feet
C
1S FR ONE STORY FRAME
168 square feet
Parcel Images
Please note:
this tab is for informational purposes only and may not show all delinquencies, see the Taxes tab for more accurate delinquent taxes due.