Elected Officials
Courts
Departments
Initiatives
Open Government
About
Login / Register
Home
/
Property & Tax Records
/
Property Records
/
Property & Tax Search
/
Parcel Profile
/
Print View
Search for Another Parcel
Parcel Profile
Historical Card
Sketches
Photos
Tax Map
Taxes
Print View
Print This Page
Address: 2583 DUNN VALLEY RD
Parcel: 31007043000200
Parcel Profile
Address
2583 | DUNN VALLEY | RD
Street Status
PAVED
School District
GENERAL MCLANE SCHOOL
Acreage
51.6900
Classification
F
Land Use Code
20 - 79.99 ACRES
Legal Description
2583 DUNN VALLEY RD 51.69 AC
Square Feet
2000
Topo
LEVEL
Utility
WELL | SEPTIC
Zoning
Please contact your municipal zoning officer
Deed Book
1301
Deed Page
0530
2026 Tax Values
Land Value / Taxable
84,000 / 67,000.00
Building Value / Taxable
63,300 / 63,300.00
Total Value / Taxable
147,300 / 130,300.00
Clean & Green
Active
Homestead Status
Active
Farmstead Status
Active
Lerta Amount
0
Lerta Expiration Year
0
Residential Data
Card 1
Style
OLD STYLE
Basement
PART
Year Built
1892
Exterior Wall
FRAME
Total Living Area
2000
Full Baths
1
Half Baths
0
Fuel Type
OIL
Heating
CENTRAL
Heating System
FORCED AIR
Stories
2.0
Total Bedrooms
4
Total Family Rooms
1
Total Rooms
6
Fireplaces
0
Other Buildings & Yards
Description
Built
Width
Length
Area
WOOD BOARD CORN CRIB
1980
30
40
1200
Sales History
Sale Date
Type
Price
Book / Page
Other Info
1/19/2006
LAND & BUILDING
0
1301 / 0530
DEED
2/17/2005
LAND & BUILDING
0
1211 / 1667
DEED
12/6/1990
0
0145 / 1087
Parcel Sketches
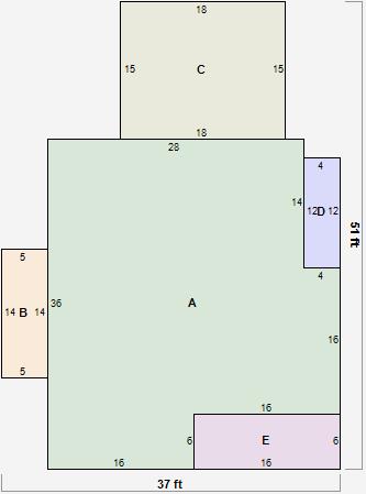
Residential Card 1
A
MAIN
1000 square feet
B
OFP OPEN FRAME PORCH
70 square feet
C
OFP OPEN FRAME PORCH
270 square feet
D
OFP OPEN FRAME PORCH
48 square feet
E
OFP OPEN FRAME PORCH
96 square feet
Parcel Images
Please note:
this tab is for informational purposes only and may not show all delinquencies, see the Taxes tab for more accurate delinquent taxes due.