Elected Officials
Courts
Departments
Initiatives
Open Government
About
Login / Register
Home
/
Property & Tax Records
/
Property Records
/
Property & Tax Search
/
Parcel Profile
/
Print View
Search for Another Parcel
Parcel Profile
Historical Card
Sketches
Photos
Tax Map
Taxes
Print View
Print This Page
Address: 2495 DUNN VALLEY RD
Parcel: 31007043000501
Parcel Profile
Address
2495 | DUNN VALLEY | RD
Street Status
PAVED
School District
GENERAL MCLANE SCHOOL
Acreage
7.0000
Classification
R
Land Use Code
SINGLE FAMILY
Legal Description
2495 DUNN VALLEY RD 7 AC NET
Square Feet
1768
Topo
LEVEL
Utility
GAS | WELL | SEPTIC
Zoning
Please contact your municipal zoning officer
Deed Book
2022
Deed Page
020524
2026 Tax Values
Land Value / Taxable
57,600 / 57,600.00
Building Value / Taxable
80,200 / 80,200.00
Total Value / Taxable
137,800 / 137,800.00
Clean & Green
Inactive
Homestead Status
Active
Farmstead Status
Inactive
Lerta Amount
0
Lerta Expiration Year
0
Residential Data
Card 1
Style
CONVENTIONAL
Basement
FULL
Year Built
1910
Exterior Wall
ALUMINUM/VINYL
Total Living Area
1768
Full Baths
1
Half Baths
1
Fuel Type
GAS
Heating
CENTRAL A/C
Heating System
HOT WATER
Stories
2.0
Total Bedrooms
3
Total Family Rooms
0
Total Rooms
8
Fireplaces
0
Other Buildings & Yards
Description
Built
Width
Length
Area
FRAME UTILITY SHED
1960
38
10
380
FRAME UTILITY SHED
1960
11
11
121
BANK BARN
1960
20
31
620
BRICK OR STONE DETACHED GAR.
1960
44
45
1980
FRAME UTILITY SHED
1960
14
5
70
FRAME UTILITY SHED
1960
14
5
70
Sales History
Sale Date
Type
Price
Book / Page
Other Info
9/20/2022
LAND & BUILDING
306000
2022 / 020524
DEED
9/4/1992
0
0229 / 0376
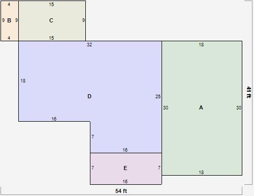
Parcel Sketches
Residential Card 1
A
MAIN
540 square feet
B
MA_PT CONC/MAS PATIO
36 square feet
C
EFP ENCL FRAME PORCH
135 square feet
D
1S FR ONE STORY FRAME
688 square feet
E
OFP OPEN FRAME PORCH
112 square feet
Parcel Images
Please note:
this tab is for informational purposes only and may not show all delinquencies, see the Taxes tab for more accurate delinquent taxes due.