Elected Officials
Courts
Departments
Initiatives
Open Government
About
Login / Register
Home
/
Property & Tax Records
/
Property Records
/
Property & Tax Search
/
Parcel Profile
/
Print View
Search for Another Parcel
Parcel Profile
Historical Card
Sketches
Photos
Tax Map
Taxes
Print View
Print This Page
Address: 8990 FRY RD
Parcel: 31011048000402
Parcel Profile
Address
8990 | FRY | RD
Street Status
PAVED
School District
GENERAL MCLANE SCHOOL
Acreage
12.7370
Classification
F
Land Use Code
10-19.99 ACRES
Legal Description
8990 FRY RD LOTS B & C 12.737 AC NET | 12.908 AC GROSS
Square Feet
3052
Topo
LEVEL
Utility
WELL | SEPTIC
Zoning
Please contact your municipal zoning officer
Deed Book
0805
Deed Page
1541
2025 Tax Values
Land Value / Taxable
64,200 / 43,000.00
Building Value / Taxable
200,200 / 200,200.00
Total Value / Taxable
264,400 / 243,200.00
Clean & Green
Active
Homestead Status
Inactive
Farmstead Status
Inactive
Lerta Amount
0
Lerta Expiration Year
0
Residential Data
Card 1
Style
CAPE
Basement
FULL
Year Built
2009
Exterior Wall
ALUMINUM/VINYL
Total Living Area
3052
Full Baths
2
Half Baths
1
Fuel Type
GAS
Heating
CENTRAL A/C
Heating System
FORCED AIR
Stories
1.5
Total Bedrooms
3
Total Family Rooms
0
Total Rooms
5
Fireplaces
1
Other Buildings & Yards
Description
Built
Width
Length
Area
FOUR SIDE CLOSED MTL POLE BLDG
1971
30
50
1500
BANK BARN
1971
40
50
2000
ONE SIDE OPEN MTL POLE BLDG
2012
20
50
1000
ONE SIDE OPEN MTL POLE BLDG
2012
12
28
336
Sales History
Sale Date
Type
Price
Book / Page
Other Info
8/30/2001
0
0805 / 1541
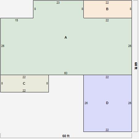
Parcel Sketches
Residential Card 1
A
MAIN
1744 square feet
B
OFP OPEN FRAME PORCH
176 square feet
C
OFP OPEN FRAME PORCH
176 square feet
D
FR GR FRAME GARAGE AT UN ATTIC-UNFINISHED
572 square feet
Parcel Images