Elected Officials
Courts
Departments
Initiatives
Open Government
About
Login / Register
Home
/
Property & Tax Records
/
Property Records
/
Property & Tax Search
/
Parcel Profile
/
Print View
Search for Another Parcel
Parcel Profile
Historical Card
Sketches
Photos
Tax Map
Taxes
Print View
Print This Page
Address: 9207 EDINBORO ROAD
Parcel: 31014046001500
Parcel Profile
Address
9207 | EDINBORO | ROAD
Street Status
PAVED
School District
GENERAL MCLANE SCHOOL
Acreage
0.9045
Classification
R
Land Use Code
MULTIPLE DWELLINGS
Legal Description
9207 EDINBORO RD 132X315
Square Feet
2694
Topo
ABOVE STREET
Utility
GAS | WELL | SEPTIC
Zoning
Please contact your municipal zoning officer
Deed Book
0185
Deed Page
0308
2025 Tax Values
Land Value / Taxable
32,800 / 32,800.00
Building Value / Taxable
154,640 / 154,640.00
Total Value / Taxable
187,440 / 187,440.00
Clean & Green
Inactive
Homestead Status
Inactive
Farmstead Status
Inactive
Lerta Amount
0
Lerta Expiration Year
0
Residential Data
Card 1
Style
BUNGALOW
Basement
FULL
Year Built
1900
Exterior Wall
ALUMINUM/VINYL
Total Living Area
594
Full Baths
1
Half Baths
0
Fuel Type
GAS
Heating
CENTRAL
Heating System
FORCED AIR
Stories
1.0
Total Bedrooms
1
Total Family Rooms
0
Total Rooms
3
Fireplaces
0
Card 2
Style
CAPE
Basement
FULL
Year Built
1961
Exterior Wall
ALUMINUM/VINYL
Total Living Area
2100
Full Baths
2
Half Baths
0
Fuel Type
GAS
Heating
CENTRAL
Heating System
FORCED AIR
Stories
1.5
Total Bedrooms
3
Total Family Rooms
0
Total Rooms
7
Fireplaces
0
Other Buildings & Yards
No OBY Data Found
Sales History
Sale Date
Type
Price
Book / Page
Other Info
11/15/1991
0
0185 / 0308
Parcel Sketches
Residential Card 1
A
MAIN
594 square feet
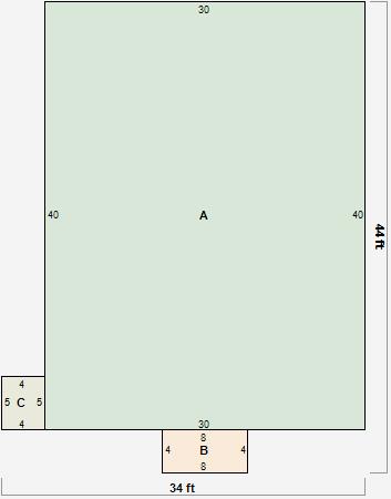
Residential Card 2
A
MAIN
1200 square feet
B
WDDCK WOOD DECKS
32 square feet
C
MA STOOP/TERR MAS STOOP
20 square feet
Parcel Images