Elected Officials
Courts
Departments
Initiatives
Open Government
About
Login / Register
Home
/
Property & Tax Records
/
Property Records
/
Property & Tax Search
/
Parcel Profile
/
Print View
Search for Another Parcel
Parcel Profile
Historical Card
Sketches
Photos
Tax Map
Taxes
Print View
Print This Page
Address: 5010 W EAST AVE
Parcel: 32003003001400
Parcel Profile
Address
5010 | W | EAST | AVE
Street Status
PAVED | SIDEWALK
School District
GENERAL MCLANE SCHOOL
Acreage
0.3750
Classification
R
Land Use Code
SINGLE FAMILY
Legal Description
5010 W EAST AVE 82.5 X 198
Square Feet
1288
Topo
LEVEL
Utility
PUBLIC SEWER | GAS | WELL
Zoning
Please contact your municipal zoning officer
Deed Book
1321
Deed Page
0353
2026 Tax Values
Land Value / Taxable
31,800 / 31,800.00
Building Value / Taxable
58,000 / 58,000.00
Total Value / Taxable
89,800 / 89,800.00
Clean & Green
Inactive
Homestead Status
Active
Farmstead Status
Inactive
Lerta Amount
0
Lerta Expiration Year
0
Residential Data
Card 1
Style
CAPE
Basement
FULL
Year Built
1925
Exterior Wall
ALUMINUM/VINYL
Total Living Area
1288
Full Baths
1
Half Baths
0
Fuel Type
GAS
Heating
CENTRAL
Heating System
FORCED AIR
Stories
1.0
Total Bedrooms
3
Total Family Rooms
0
Total Rooms
5
Fireplaces
0
Other Buildings & Yards
Description
Built
Width
Length
Area
DETACHED OPEN FR PORCH
1925
8
32
256
FRAME OR CB DETACHED GARAGE
1991
20
32
640
FRAME UTILITY SHED
2000
10
22
220
Sales History
Sale Date
Type
Price
Book / Page
Other Info
4/20/2006
LAND & BUILDING
0
1321 / 0353
QUIT CLAIM DEED
6/15/1979
0
1352 / 0173
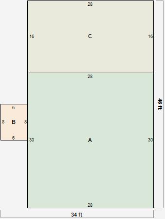
Parcel Sketches
Residential Card 1
A
MAIN
840 square feet
B
WDDCK WOOD DECKS
48 square feet
C
1S FR ONE STORY FRAME
448 square feet
Parcel Images
Please note:
this tab is for informational purposes only and may not show all delinquencies, see the Taxes tab for more accurate delinquent taxes due.