Elected Officials
Courts
Departments
Initiatives
Open Government
About
Login / Register
Home
/
Property & Tax Records
/
Property Records
/
Property & Tax Search
/
Parcel Profile
/
Print View
Search for Another Parcel
Parcel Profile
Historical Card
Sketches
Photos
Tax Map
Taxes
Print View
Print This Page
Address: 8967 N MAIN ST
Parcel: 32003003001900
Parcel Profile
Address
8967 | N | MAIN | ST
Street Status
PAVED | SIDEWALK
School District
GENERAL MCLANE SCHOOL
Acreage
0.2568
Classification
R
Land Use Code
SINGLE FAMILY
Legal Description
8967 N MAIN ST 49 X 242 IRR
Square Feet
1440
Topo
LEVEL | ROLLING
Utility
PUBLIC SEWER | GAS | WELL
Zoning
Please contact your municipal zoning officer
Deed Book
2010
Deed Page
002395
2026 Tax Values
Land Value / Taxable
28,800 / 28,800.00
Building Value / Taxable
49,120 / 49,120.00
Total Value / Taxable
77,920 / 77,920.00
Clean & Green
Inactive
Homestead Status
Inactive
Farmstead Status
Inactive
Lerta Amount
0
Lerta Expiration Year
0
Residential Data
Card 1
Style
OLD STYLE
Basement
FULL
Year Built
1860
Exterior Wall
ALUMINUM/VINYL
Total Living Area
1440
Full Baths
1
Half Baths
0
Fuel Type
GAS
Heating
CENTRAL
Heating System
FORCED AIR
Stories
2.0
Total Bedrooms
3
Total Family Rooms
0
Total Rooms
6
Fireplaces
0
Other Buildings & Yards
No OBY Data Found
Sales History
Sale Date
Type
Price
Book / Page
Other Info
2/2/2010
LAND & BUILDING
70000
2010 / 002395
FIDUCIARY DEED
11/17/1982
0
1477 / 0083
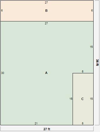
Parcel Sketches
Residential Card 1
A
MAIN
720 square feet
B
MA_PT CONC/MAS PATIO
162 square feet
C
OFP OPEN FRAME PORCH
90 square feet
Parcel Images
Please note:
this tab is for informational purposes only and may not show all delinquencies, see the Taxes tab for more accurate delinquent taxes due.