Elected Officials
Courts
Departments
Initiatives
Open Government
About
Login / Register
Home
/
Property & Tax Records
/
Property Records
/
Property & Tax Search
/
Parcel Profile
/
Print View
Search for Another Parcel
Parcel Profile
Historical Card
Sketches
Photos
Tax Map
Taxes
Print View
Print This Page
Address: 9108 MAIN ST
Parcel: 32005005001301
Parcel Profile
Address
9108 | MAIN | ST
Street Status
PAVED
School District
GENERAL MCLANE SCHOOL
Acreage
0.8310
Classification
R
Land Use Code
SINGLE FAMILY
Legal Description
9108 MAIN ST 155.36 X 233
Square Feet
1820
Topo
LEVEL
Utility
PUBLIC SEWER | GAS | WELL
Zoning
Please contact your municipal zoning officer
Deed Book
0630
Deed Page
0863
2026 Tax Values
Land Value / Taxable
36,600 / 36,600.00
Building Value / Taxable
84,300 / 84,300.00
Total Value / Taxable
120,900 / 120,900.00
Clean & Green
Inactive
Homestead Status
Inactive
Farmstead Status
Inactive
Lerta Amount
0
Lerta Expiration Year
0
Residential Data
Card 1
Style
OLD STYLE
Basement
FULL
Year Built
1920
Exterior Wall
ALUMINUM/VINYL
Total Living Area
1820
Full Baths
2
Half Baths
0
Fuel Type
GAS
Heating
CENTRAL
Heating System
FORCED AIR
Stories
2.0
Total Bedrooms
1
Total Family Rooms
1
Total Rooms
5
Fireplaces
1
Other Buildings & Yards
Description
Built
Width
Length
Area
FRAME OR CB DETACHED GARAGE
1920
16
18
288
WOOD DECK
1980
11
19
209
FOUR SIDE CLOSED MTL POLE BLDG
2021
28
30
840
Sales History
Sale Date
Type
Price
Book / Page
Other Info
4/19/1999
LAND & BUILDING
115000
0630 / 0863
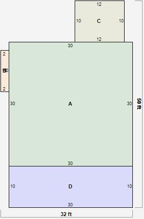
Parcel Sketches
Residential Card 1
A
MAIN
900 square feet
B
FROVR FRAME OVERHANG
20 square feet
C
WDDCK WOOD DECKS
120 square feet
D
OMP OPEN MASONRY PORCH
300 square feet
Parcel Images
Please note:
this tab is for informational purposes only and may not show all delinquencies, see the Taxes tab for more accurate delinquent taxes due.