Elected Officials
Courts
Departments
Initiatives
Open Government
About
Login / Register
Home
/
Property & Tax Records
/
Property Records
/
Property & Tax Search
/
Parcel Profile
/
Print View
Search for Another Parcel
Parcel Profile
Historical Card
Sketches
Photos
Tax Map
Taxes
Print View
Print This Page
Address: 4961 EAST AVE
Parcel: 32006006000700
Parcel Profile
Address
4961 | EAST | AVE
Street Status
PAVED
School District
GENERAL MCLANE SCHOOL
Acreage
1.4600
Classification
R
Land Use Code
SINGLE FAMILY
Legal Description
4961 EAST AVE 1.46 AC CAL
Square Feet
1959
Topo
LEVEL
Utility
ALL PUBLIC
Zoning
Please contact your municipal zoning officer
Deed Book
0283
Deed Page
0511
2026 Tax Values
Land Value / Taxable
40,200 / 40,200.00
Building Value / Taxable
43,410 / 43,410.00
Total Value / Taxable
83,610 / 83,610.00
Clean & Green
Inactive
Homestead Status
Active
Farmstead Status
Inactive
Lerta Amount
0
Lerta Expiration Year
0
Residential Data
Card 1
Style
OLD STYLE
Basement
CRAWL
Year Built
1900
Exterior Wall
ALUMINUM/VINYL
Total Living Area
1959
Full Baths
2
Half Baths
0
Fuel Type
GAS
Heating
CENTRAL
Heating System
HOT WATER
Stories
2.0
Total Bedrooms
2
Total Family Rooms
1
Total Rooms
7
Fireplaces
0
Other Buildings & Yards
Description
Built
Width
Length
Area
BANK BARN
1900
38
32
1216
FLAT BARN
1900
20
30
600
Sales History
Sale Date
Type
Price
Book / Page
Other Info
7/30/1993
0
0283 / 0511
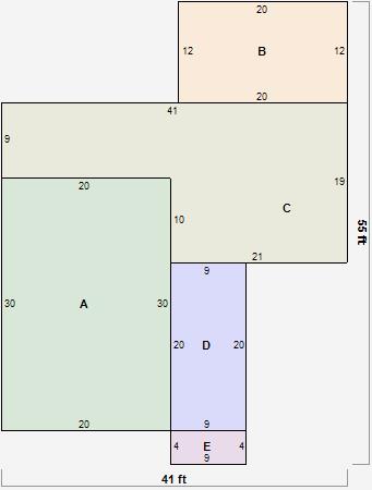
Parcel Sketches
Residential Card 1
A
MAIN
600 square feet
B
OFP OPEN FRAME PORCH
240 square feet
C
1S FR ONE STORY FRAME
579 square feet
D
1S FR ONE STORY FRAME
180 square feet
E
WDDCK WOOD DECKS
36 square feet
Parcel Images
Please note:
this tab is for informational purposes only and may not show all delinquencies, see the Taxes tab for more accurate delinquent taxes due.