Elected Officials
Courts
Departments
Initiatives
Open Government
About
Login / Register
Home
/
Property & Tax Records
/
Property Records
/
Property & Tax Search
/
Parcel Profile
/
Print View
Search for Another Parcel
Parcel Profile
Historical Card
Sketches
Photos
Tax Map
Taxes
Print View
Print This Page
Address: 4881 EAST AVE
Parcel: 32006006002100
Parcel Profile
Address
4881 | EAST | AVE
Street Status
PAVED
School District
GENERAL MCLANE SCHOOL
Acreage
2.8100
Classification
R
Land Use Code
SINGLE FAMILY
Legal Description
4881 EAST AVE LOT A 2.810 AC NET | 2.896 AC GROSS
Square Feet
2143
Topo
LEVEL
Utility
PUBLIC SEWER | GAS | WELL
Zoning
Please contact your municipal zoning officer
Deed Book
1378
Deed Page
1844
2026 Tax Values
Land Value / Taxable
45,400 / 45,400.00
Building Value / Taxable
121,230 / 121,230.00
Total Value / Taxable
166,630 / 166,630.00
Clean & Green
Inactive
Homestead Status
Active
Farmstead Status
Inactive
Lerta Amount
0
Lerta Expiration Year
0
Residential Data
Card 1
Style
OLD STYLE
Basement
PART
Year Built
1900
Exterior Wall
ALUMINUM/VINYL
Total Living Area
2143
Full Baths
1
Half Baths
0
Fuel Type
GAS
Heating
CENTRAL A/C
Heating System
FORCED AIR
Stories
2.0
Total Bedrooms
4
Total Family Rooms
1
Total Rooms
8
Fireplaces
0
Other Buildings & Yards
Description
Built
Width
Length
Area
FRAME OR CB DETACHED GARAGE
1981
24
24
576
FRAME UTILITY SHED
1992
8
14
112
FIBERGLASS POOL
2014
20
38
760
Sales History
Sale Date
Type
Price
Book / Page
Other Info
11/27/2006
LAND & BUILDING
138000
1378 / 1844
DEED
2/13/1991
0
0150 / 1262
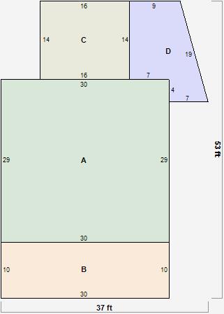
Parcel Sketches
Residential Card 1
A
MAIN
870 square feet
B
OFP OPEN FRAME PORCH
300 square feet
C
1S FR ONE STORY FRAME
224 square feet
D
1S FR ONE STORY FRAME
179 square feet
Parcel Images
Please note:
this tab is for informational purposes only and may not show all delinquencies, see the Taxes tab for more accurate delinquent taxes due.