Address: 9119 MAIN ST   Parcel: 32006006002400
Parcel Profile
Address9119 | MAIN | ST
Street StatusPAVED
School DistrictGENERAL MCLANE SCHOOL
Acreage0.7559
ClassificationR
Land Use CodeSINGLE FAMILY
Legal Description9119 MAIN ST 153.5 X 214.5
Square Feet1906
TopoLEVEL
UtilityPUBLIC SEWER | GAS | WELL
ZoningPlease contact your municipal zoning officer
Deed Book1320
Deed Page0778
2025 Tax Values
Land Value / Taxable35,800 / 35,800.00
Building Value / Taxable63,600 / 63,600.00
Total Value / Taxable99,400 / 99,400.00
Clean & GreenInactive
Homestead StatusInactive
Farmstead StatusInactive
Lerta Amount0
Lerta Expiration Year0
Residential Data
Card 1
     StyleOLD STYLE
     BasementFULL
     Year Built1900
     Exterior WallALUMINUM/VINYL
     Total Living Area1906
     Full Baths1
     Half Baths0
     Fuel TypeGAS
     HeatingCENTRAL
     Heating SystemFORCED AIR
     Stories2.0
     Total Bedrooms4
     Total Family Rooms1
     Total Rooms8
     Fireplaces1
Other Buildings & Yards
No OBY Data Found
Sales History
Sale DateTypePriceBook / PageOther Info
4/17/2006LAND & BUILDING750001320 / 0778DEED
3/27/1998 00550 / 0890 



Parcel Sketches

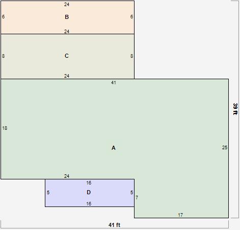
Residential Card 1

Residential Card 1
AMAIN857 square feet
B OFP OPEN FRAME PORCH 144 square feet
C 1S FR ONE STORY FRAME 192 square feet
D OMP OPEN MASONRY PORCH 80 square feet

Parcel Images

parcel photoparcel photo