Elected Officials
Courts
Departments
Initiatives
Open Government
About
Login / Register
Home
/
Property & Tax Records
/
Property Records
/
Property & Tax Search
/
Parcel Profile
/
Print View
Search for Another Parcel
Parcel Profile
Historical Card
Sketches
Photos
Tax Map
Taxes
Print View
Print This Page
Address: 4840 WOLF RD
Parcel: 33002001005200
Parcel Profile
Address
4840 | WOLF | RD
Street Status
PRIVATE
School District
MILLCREEK SCHOOL
Acreage
13.8500
Classification
F
Land Use Code
10-19.99 ACRES
Legal Description
4840 WOLF RD 13.85 AC.CAL
Square Feet
3512
Topo
LEVEL
Utility
ALL PUBLIC
Zoning
Please contact your municipal zoning officer
Deed Book
2014
Deed Page
007503
2026 Tax Values
Land Value / Taxable
720,000 / 391,200.00
Building Value / Taxable
720,000 / 720,000.00
Total Value / Taxable
1,440,000 / 1,111,200.00
Clean & Green
Active
Homestead Status
Inactive
Farmstead Status
Inactive
Lerta Amount
0
Lerta Expiration Year
0
Residential Data
Card 1
Style
CONVENTIONAL
Basement
FULL
Year Built
1935
Exterior Wall
BRICK
Total Living Area
3512
Full Baths
3
Half Baths
1
Fuel Type
GAS
Heating
CENTRAL A/C
Heating System
FORCED AIR
Stories
2.0
Total Bedrooms
3
Total Family Rooms
1
Total Rooms
9
Fireplaces
4
Other Buildings & Yards
Description
Built
Width
Length
Area
CONCRET PATIO, DETACHED
1990
0
0
400
FRAME OR CB DETACHED GARAGE
1933
25
36
900
Sales History
Sale Date
Type
Price
Book / Page
Other Info
4/23/2014
LAND & BUILDING
1500000
2014 / 007503
DEED
10/13/2005
LAND & BUILDING
0
1278 / 0347
QUIT CLAIM DEED
6/21/1995
0
0389 / 0192
8/29/1988
500000
0062 / 1307
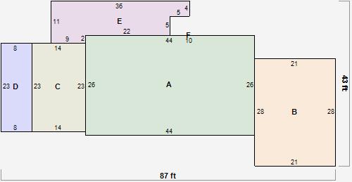
Parcel Sketches
Residential Card 1
A
MAIN
1144 square feet
B
MG/BG MASONRY/BRICK GARAGE 1/2MA 1/2ST MASONRY
588 square feet
C
UNFIN BSMT BASEMENT UNFINISHED 1SMAS MASONRY 1/2MA 1/2ST MASONRY
322 square feet
D
ST_PT STONE OR TILE PATIO
184 square feet
E
OMP OPEN MASONRY PORCH
317 square feet
F
1S FR ONE STORY FRAME
39 square feet
Parcel Images
Please note:
this tab is for informational purposes only and may not show all delinquencies, see the Taxes tab for more accurate delinquent taxes due.