Elected Officials
Courts
Departments
Initiatives
Open Government
About
Login / Register
Home
/
Property & Tax Records
/
Property Records
/
Property & Tax Search
/
Parcel Profile
/
Print View
Search for Another Parcel
Parcel Profile
Historical Card
Sketches
Photos
Tax Map
Taxes
Print View
Print This Page
Address: 516 ARDMORE AVE
Parcel: 33005001019500
Parcel Profile
Address
516 | ARDMORE | AVE
Street Status
PAVED | SIDEWALK
School District
MILLCREEK SCHOOL
Acreage
0.2456
Classification
R
Land Use Code
SINGLE FAMILY
Legal Description
516 ARDMORE AVE 100X108.13 IRR
Square Feet
1774
Topo
LEVEL
Utility
ALL PUBLIC
Zoning
Please contact your municipal zoning officer
Deed Book
1454
Deed Page
0206
2026 Tax Values
Land Value / Taxable
23,100 / 23,100.00
Building Value / Taxable
97,500 / 97,500.00
Total Value / Taxable
120,600 / 120,600.00
Clean & Green
Inactive
Homestead Status
Inactive
Farmstead Status
Inactive
Lerta Amount
0
Lerta Expiration Year
0
Residential Data
Card 1
Style
SPLIT LEVEL
Basement
PART
Year Built
1935
Exterior Wall
ALUMINUM/VINYL
Total Living Area
1774
Full Baths
1
Half Baths
1
Fuel Type
GAS
Heating
CENTRAL A/C
Heating System
FORCED AIR
Stories
1.5
Total Bedrooms
3
Total Family Rooms
1
Total Rooms
7
Fireplaces
1
Other Buildings & Yards
No OBY Data Found
Sales History
Sale Date
Type
Price
Book / Page
Other Info
10/17/2007
LAND & BUILDING
122900
1454 / 0206
DEED
12/22/1960
0
0831 / 0405
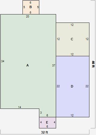
Parcel Sketches
Residential Card 1
A
MAIN
698 square feet
B
OFP OPEN FRAME PORCH
30 square feet
C
1S FR ONE STORY FRAME 1S FR ONE STORY FRAME
144 square feet
D
FR GR FRAME GARAGE 1S FR ONE STORY FRAME
264 square feet
E
OFP OPEN FRAME PORCH
24 square feet
Parcel Images