Elected Officials
Courts
Departments
Initiatives
Open Government
About
Login / Register
Home
/
Property & Tax Records
/
Property Records
/
Property & Tax Search
/
Parcel Profile
/
Print View
Search for Another Parcel
Parcel Profile
Historical Card
Sketches
Photos
Tax Map
Taxes
Print View
Print This Page
Address: 420 ARDMORE AVE
Parcel: 33005001020000
Parcel Profile
Address
420 | ARDMORE | AVE
Street Status
PAVED | SIDEWALK
School District
MILLCREEK SCHOOL
Acreage
0.1274
Classification
R
Land Use Code
SINGLE FAMILY
Legal Description
420 ARDMORE AVE 50X111.98IR
Square Feet
922
Topo
LEVEL
Utility
ALL PUBLIC
Zoning
Please contact your municipal zoning officer
Deed Book
1138
Deed Page
0666
2026 Tax Values
Land Value / Taxable
19,700 / 19,700.00
Building Value / Taxable
44,860 / 44,860.00
Total Value / Taxable
64,560 / 64,560.00
Clean & Green
Inactive
Homestead Status
Inactive
Farmstead Status
Inactive
Lerta Amount
0
Lerta Expiration Year
0
Residential Data
Card 1
Style
BUNGALOW
Basement
NONE
Year Built
1938
Exterior Wall
BLOCK
Total Living Area
922
Full Baths
1
Half Baths
0
Fuel Type
GAS
Heating
CENTRAL
Heating System
NONE
Stories
1.0
Total Bedrooms
2
Total Family Rooms
0
Total Rooms
4
Fireplaces
0
Other Buildings & Yards
Description
Built
Width
Length
Area
FRAME UTILITY SHED
1950
10
13
130
Sales History
Sale Date
Type
Price
Book / Page
Other Info
5/25/2004
LAND & BUILDING
20000
1138 / 0666
WARRANTY/SURVIVORSHIP DEED
11/18/1941
0
0405 / 0428
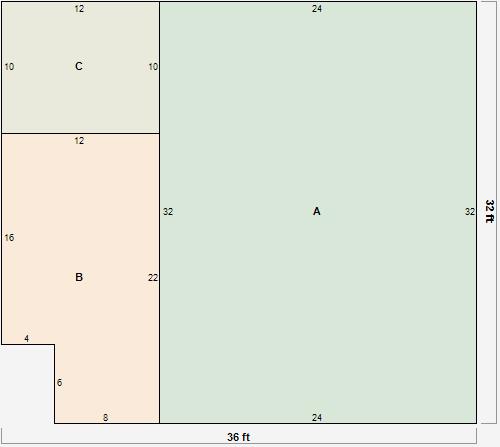
Parcel Sketches
Residential Card 1
A
MAIN
768 square feet
B
EFP ENCL FRAME PORCH
240 square feet
C
FR UT FRAME UTILITY BUILDING
120 square feet
Parcel Images
Please note:
this tab is for informational purposes only and may not show all delinquencies, see the Taxes tab for more accurate delinquent taxes due.