Elected Officials
Courts
Departments
Initiatives
Open Government
About
Login / Register
Home
/
Property & Tax Records
/
Property Records
/
Property & Tax Search
/
Parcel Profile
/
Print View
Search for Another Parcel
Parcel Profile
Historical Card
Sketches
Photos
Tax Map
Taxes
Print View
Print This Page
Address: 414 ROSLYN AVE
Parcel: 33005011000104
Parcel Profile
Address
414 | ROSLYN | AVE
Street Status
PAVED
School District
MILLCREEK SCHOOL
Acreage
0.1694
Classification
R
Land Use Code
SINGLE FAMILY
Legal Description
414 ROSLYN AVE LOT 3 61.7X118.78
Square Feet
1675
Topo
LEVEL
Utility
ALL PUBLIC
Zoning
Please contact your municipal zoning officer
Deed Book
2018
Deed Page
006949
2026 Tax Values
Land Value / Taxable
21,000 / 21,000.00
Building Value / Taxable
165,600 / 165,600.00
Total Value / Taxable
186,600 / 186,600.00
Clean & Green
Inactive
Homestead Status
Active
Farmstead Status
Inactive
Lerta Amount
0
Lerta Expiration Year
0
Residential Data
Card 1
Style
RANCH
Basement
FULL
Year Built
2018
Exterior Wall
ALUMINUM/VINYL
Total Living Area
1675
Full Baths
2
Half Baths
0
Fuel Type
GAS
Heating
CENTRAL A/C
Heating System
FORCED AIR
Stories
1.0
Total Bedrooms
3
Total Family Rooms
0
Total Rooms
5
Fireplaces
0
Other Buildings & Yards
No OBY Data Found
Sales History
Sale Date
Type
Price
Book / Page
Other Info
4/16/2018
LAND
25000
2018 / 006949
FIDUCIARY DEED
1/19/2000
0
0683 / 2158
10/13/1978
0
1324 / 0564
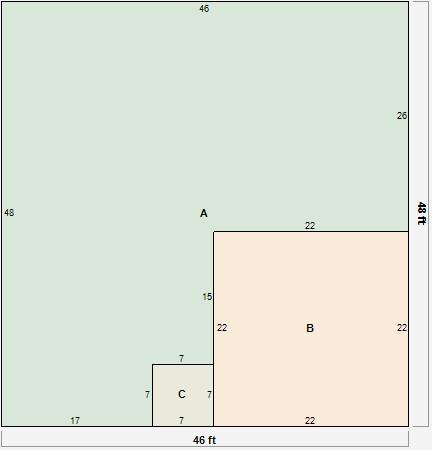
Parcel Sketches
Residential Card 1
A
MAIN
1675 square feet
B
FR GR FRAME GARAGE
484 square feet
C
OFP OPEN FRAME PORCH
49 square feet
Parcel Images
Please note:
this tab is for informational purposes only and may not show all delinquencies, see the Taxes tab for more accurate delinquent taxes due.