Elected Officials
Courts
Departments
Initiatives
Open Government
About
Login / Register
Home
/
Property & Tax Records
/
Property Records
/
Property & Tax Search
/
Parcel Profile
/
Print View
Search for Another Parcel
Parcel Profile
Historical Card
Sketches
Photos
Tax Map
Taxes
Print View
Print This Page
Address: 220 GLENRUADH AVE
Parcel: 33005018000500
Parcel Profile
Address
220 | GLENRUADH | AVE
Street Status
PAVED
School District
MILLCREEK SCHOOL
Acreage
0.1879
Classification
R
Land Use Code
SINGLE FAMILY
Legal Description
220 GLENRUADH AVE 66X124
Square Feet
1374
Topo
LEVEL
Utility
ALL PUBLIC
Zoning
Please contact your municipal zoning officer
Deed Book
2016
Deed Page
007175
2026 Tax Values
Land Value / Taxable
21,500 / 21,500.00
Building Value / Taxable
101,000 / 101,000.00
Total Value / Taxable
122,500 / 122,500.00
Clean & Green
Inactive
Homestead Status
Inactive
Farmstead Status
Inactive
Lerta Amount
0
Lerta Expiration Year
0
Residential Data
Card 1
Style
RANCH
Basement
NONE
Year Built
1936
Exterior Wall
ALUMINUM/VINYL
Total Living Area
1374
Full Baths
2
Half Baths
0
Fuel Type
GAS
Heating
CENTRAL A/C
Heating System
FORCED AIR
Stories
1.0
Total Bedrooms
3
Total Family Rooms
0
Total Rooms
5
Fireplaces
0
Other Buildings & Yards
No OBY Data Found
Sales History
Sale Date
Type
Price
Book / Page
Other Info
4/13/2016
LAND & BUILDING
135000
2016 / 007175
DEED
7/30/2015
LAND & BUILDING
135000
2015 / 016285
DEED
8/23/2011
LAND & BUILDING
135000
2011 / 019608
DEED
2/27/2002
LAND & BUILDING
0
857 / 461
DEED
2/2/2001
LAND & BUILDING
48000
750 / 2299
7/22/1983
0
1502 / 0325
3/17/1977
0
1256 / 0024
4/22/1964
0
0895 / 0512
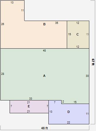
Parcel Sketches
Residential Card 1
A
MAIN
1374 square feet
B
MA_PT CONC/MAS PATIO
863 square feet
C
CANPY CANOPY
180 square feet
D
FR GR FRAME GARAGE
256 square feet
E
OFP OPEN FRAME PORCH
147 square feet
Parcel Images
Please note:
this tab is for informational purposes only and may not show all delinquencies, see the Taxes tab for more accurate delinquent taxes due.