Elected Officials
Courts
Departments
Initiatives
Open Government
About
Login / Register
Home
/
Property & Tax Records
/
Property Records
/
Property & Tax Search
/
Parcel Profile
/
Print View
Search for Another Parcel
Parcel Profile
Historical Card
Sketches
Photos
Tax Map
Taxes
Print View
Print This Page
Address: 3633 SYCAMORE RD
Parcel: 33006020000300
Parcel Profile
Address
3633 | SYCAMORE | RD
Street Status
PAVED | SIDEWALK
School District
MILLCREEK SCHOOL
Acreage
0.1715
Classification
R
Land Use Code
SINGLE FAMILY
Legal Description
3633 SYCAMORE RD 49.05X83.25IR
Square Feet
1484
Topo
LEVEL
Utility
ALL PUBLIC
Zoning
Please contact your municipal zoning officer
Deed Book
2018
Deed Page
013430
2025 Tax Values
Land Value / Taxable
21,000 / 21,000.00
Building Value / Taxable
90,330 / 90,330.00
Total Value / Taxable
111,330 / 111,330.00
Clean & Green
Inactive
Homestead Status
Inactive
Farmstead Status
Inactive
Lerta Amount
0
Lerta Expiration Year
0
Residential Data
Card 1
Style
RANCH
Basement
PART
Year Built
1917
Exterior Wall
ALUMINUM/VINYL
Total Living Area
1484
Full Baths
1
Half Baths
0
Fuel Type
GAS
Heating
CENTRAL
Heating System
FORCED AIR
Stories
1.0
Total Bedrooms
3
Total Family Rooms
0
Total Rooms
6
Fireplaces
1
Other Buildings & Yards
Description
Built
Width
Length
Area
FRAME OR CB DETACHED GARAGE
1966
20
12
240
Sales History
Sale Date
Type
Price
Book / Page
Other Info
7/6/2018
LAND & BUILDING
170000
2018 / 013430
SPECIAL WARRANTY DEED
3/2/2010
LAND & BUILDING
0
2010 / 04474
DEED
8/25/2005
LAND & BUILDING
110000
1264 / 0219
WARRANTY/SURVIVORSHIP DEED
11/3/1969
0
1013 / 0122
6/29/1939
0
0393 / 0404
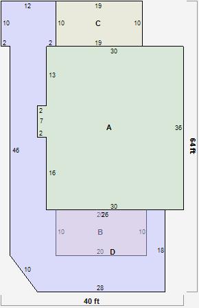
Parcel Sketches
Residential Card 1
A
MAIN
1094 square feet
B
1S FR ONE STORY FRAME
200 square feet
C
1S FR ONE STORY FRAME
190 square feet
D
WDDCK WOOD DECKS
982 square feet
Parcel Images