Elected Officials
Courts
Departments
Initiatives
Open Government
About
Login / Register
Home
/
Property & Tax Records
/
Property Records
/
Property & Tax Search
/
Parcel Profile
/
Print View
Search for Another Parcel
Parcel Profile
Historical Card
Sketches
Photos
Tax Map
Taxes
Print View
Print This Page
Address: 228 BLACKSTONE DR
Parcel: 33006020000800
Parcel Profile
Address
228 | BLACKSTONE | DR
Street Status
PAVED | SIDEWALK
School District
MILLCREEK SCHOOL
Acreage
0.1148
Classification
R
Land Use Code
SINGLE FAMILY
Legal Description
228 BLACKSTONE DR 40 X 125
Square Feet
1200
Topo
LEVEL
Utility
ALL PUBLIC
Zoning
Please contact your municipal zoning officer
Deed Book
2023
Deed Page
015136
2026 Tax Values
Land Value / Taxable
19,400 / 19,400.00
Building Value / Taxable
154,900 / 154,900.00
Total Value / Taxable
174,300 / 174,300.00
Clean & Green
Inactive
Homestead Status
Inactive
Farmstead Status
Inactive
Lerta Amount
0
Lerta Expiration Year
0
Residential Data
Card 1
Style
RANCH
Basement
NONE
Year Built
1927
Exterior Wall
ALUMINUM/VINYL
Total Living Area
1200
Full Baths
1
Half Baths
0
Fuel Type
GAS
Heating
CENTRAL
Heating System
FORCED AIR
Stories
1.0
Total Bedrooms
3
Total Family Rooms
0
Total Rooms
5
Fireplaces
1
Other Buildings & Yards
Description
Built
Width
Length
Area
REINFORCED CONCRETE POOL
1990
16
24
384
Sales History
Sale Date
Type
Price
Book / Page
Other Info
9/8/2023
LAND & BUILDING
300000
2023 / 015136
SPECIAL WARRANTY DEED
10/11/2022
LAND & BUILDING
175000
2022 / 022043
SPECIAL WARRANTY DEED
11/10/2015
LAND & BUILDING
94700
2015 / 025078
SPECIAL WARRANTY DEED
6/12/2015
LAND & BUILDING
0
2015 / 012076
QUIT CLAIM DEED
9/2/1993
0
0289 / 1385
9/24/1991
0
0177 / 1700
12/21/1990
0
0146 / 2154
5/30/1989
0
0087 / 1786
8/3/1983
0
1504 / 0113
6/19/1973
0
1098 / 0502
11/20/1964
0
0907 / 0233
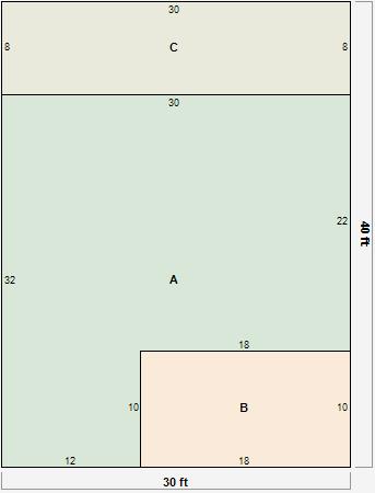
Parcel Sketches
Residential Card 1
A
MAIN
780 square feet
B
1S FR ONE STORY FRAME
180 square feet
C
1S FR ONE STORY FRAME
240 square feet
Parcel Images
Please note:
this tab is for informational purposes only and may not show all delinquencies, see the Taxes tab for more accurate delinquent taxes due.