Address: 323 SHOREHAVEN DR   Parcel: 33006020002200
Parcel Profile
Address323 | SHOREHAVEN | DR
Street StatusPAVED | SIDEWALK
School DistrictMILLCREEK SCHOOL
Acreage0.1633
ClassificationR
Land Use CodeSINGLE FAMILY
Legal Description323 SHOREHAVEN DR 45 X 90.35
Square Feet1077
TopoLEVEL
UtilityALL PUBLIC
ZoningPlease contact your municipal zoning officer
Deed Book2010
Deed Page026400
2025 Tax Values
Land Value / Taxable20,800 / 20,800.00
Building Value / Taxable84,100 / 84,100.00
Total Value / Taxable104,900 / 104,900.00
Clean & GreenInactive
Homestead StatusActive
Farmstead StatusInactive
Lerta Amount0
Lerta Expiration Year0
Residential Data
Card 1
     StyleCAPE
     BasementFULL
     Year Built1927
     Exterior WallALUMINUM/VINYL
     Total Living Area1077
     Full Baths3
     Half Baths0
     Fuel TypeGAS
     HeatingCENTRAL
     Heating SystemFORCED AIR
     Stories1.5
     Total Bedrooms3
     Total Family Rooms0
     Total Rooms6
     Fireplaces1
Other Buildings & Yards
DescriptionBuiltWidthLengthArea
 FRAME OR CB DETACHED GARAGE 1940 18 24 432
Sales History
Sale DateTypePriceBook / PageOther Info
10/22/2010LAND & BUILDING1149002010 / 026400DEED
5/13/2003LAND & BUILDING915001010 / 1265WARRANTY/SURVIVORSHIP DEED
1/2/1987 01664 / 0487 
7/7/1976 01227 / 0462 
6/28/1944 00447 / 0110 



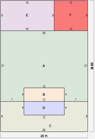
Parcel Sketches

Residential Card 1

Residential Card 1
AMAIN498 square feet
BUNFIN BSMT BASEMENT UNFINISHED 1S FR ONE STORY FRAME AT FN ATTIC-FINISHED 48 square feet
C EFP ENCL FRAME PORCH 186 square feet
D EFP ENCL FRAME PORCH 1S FR ONE STORY FRAME 48 square feet
EUNFIN BSMT BASEMENT UNFINISHED EFP ENCL FRAME PORCH 144 square feet
FUNFIN BSMT BASEMENT UNFINISHED 1S FR ONE STORY FRAME 90 square feet

Parcel Images

parcel photo