Elected Officials
Courts
Departments
Initiatives
Open Government
About
Login / Register
Home
/
Property & Tax Records
/
Property Records
/
Property & Tax Search
/
Parcel Profile
/
Print View
Search for Another Parcel
Parcel Profile
Historical Card
Sketches
Photos
Tax Map
Taxes
Print View
Print This Page
Address: 209 SHOREHAVEN DR
Parcel: 33006020003000
Parcel Profile
Address
209 | SHOREHAVEN | DR
Street Status
PAVED | SIDEWALK
School District
MILLCREEK SCHOOL
Acreage
0.4194
Classification
R
Land Use Code
SINGLE FAMILY
Legal Description
209 SHOREHAVEN DR 90X140.49
Square Feet
2710
Topo
LEVEL
Utility
ALL PUBLIC
Zoning
Please contact your municipal zoning officer
Deed Book
1121
Deed Page
0033
2026 Tax Values
Land Value / Taxable
25,100 / 25,100.00
Building Value / Taxable
141,960 / 141,960.00
Total Value / Taxable
167,060 / 167,060.00
Clean & Green
Inactive
Homestead Status
Active
Farmstead Status
Inactive
Lerta Amount
0
Lerta Expiration Year
0
Residential Data
Card 1
Style
CAPE
Basement
PART
Year Built
1917
Exterior Wall
ALUMINUM/VINYL
Total Living Area
2710
Full Baths
1
Half Baths
0
Fuel Type
GAS
Heating
CENTRAL
Heating System
FORCED AIR
Stories
1.5
Total Bedrooms
4
Total Family Rooms
1
Total Rooms
8
Fireplaces
1
Other Buildings & Yards
Description
Built
Width
Length
Area
FRAME UTILITY SHED
1970
10
12
120
Sales History
Sale Date
Type
Price
Book / Page
Other Info
5/30/1974
0
1121 / 0033
9/30/1971
0
1054 / 0011
5/18/1945
0
0461 / 0233
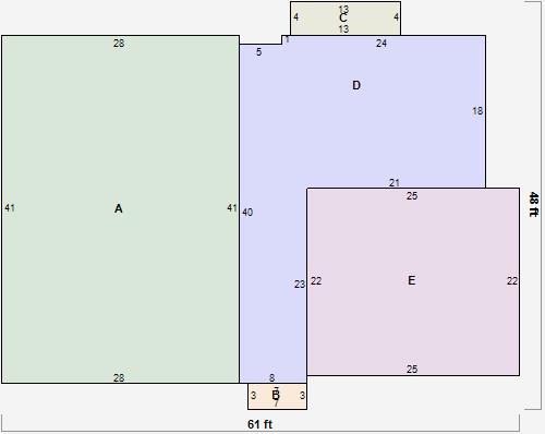
Parcel Sketches
Residential Card 1
A
MAIN
1148 square feet
B
MA STOOP/TERR MAS STOOP
21 square feet
C
MA STOOP/TERR MAS STOOP
52 square feet
D
UNFIN BSMT BASEMENT UNFINISHED 1S FR ONE STORY FRAME
701 square feet
E
FR GR FRAME GARAGE
550 square feet
Parcel Images
Please note:
this tab is for informational purposes only and may not show all delinquencies, see the Taxes tab for more accurate delinquent taxes due.