Elected Officials
Courts
Departments
Initiatives
Open Government
About
Login / Register
Home
/
Property & Tax Records
/
Property Records
/
Property & Tax Search
/
Parcel Profile
/
Print View
Search for Another Parcel
Parcel Profile
Historical Card
Sketches
Photos
Tax Map
Taxes
Print View
Print This Page
Address: 429 SHOREHAVEN DR
Parcel: 33006021001200
Parcel Profile
Address
429 | SHOREHAVEN | DR
Street Status
PAVED | SIDEWALK
School District
MILLCREEK SCHOOL
Acreage
0.2709
Classification
R
Land Use Code
SINGLE FAMILY
Legal Description
429 SHOREHAVEN DR 100 X 118.31
Square Feet
2005
Topo
LEVEL
Utility
ALL PUBLIC
Zoning
Please contact your municipal zoning officer
Deed Book
2023
Deed Page
002040
2026 Tax Values
Land Value / Taxable
23,900 / 23,900.00
Building Value / Taxable
82,930 / 82,930.00
Total Value / Taxable
106,830 / 106,830.00
Clean & Green
Inactive
Homestead Status
Inactive
Farmstead Status
Inactive
Lerta Amount
0
Lerta Expiration Year
0
Residential Data
Card 1
Style
BUNGALOW
Basement
NONE
Year Built
1927
Exterior Wall
COMPOSITION
Total Living Area
2005
Full Baths
1
Half Baths
0
Fuel Type
GAS
Heating
CENTRAL A/C
Heating System
FORCED AIR
Stories
1.0
Total Bedrooms
3
Total Family Rooms
1
Total Rooms
8
Fireplaces
1
Other Buildings & Yards
Description
Built
Width
Length
Area
FRAME OR CB DETACHED GARAGE
1927
20
22
440
Sales History
Sale Date
Type
Price
Book / Page
Other Info
2/9/2023
LAND & BUILDING
139000
2023 / 002040
FIDUCIARY DEED
3/20/1973
0
1091 / 0341
8/5/1965
0
0922 / 0102
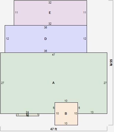
Parcel Sketches
Residential Card 1
A
MAIN
1219 square feet
B
1S FR ONE STORY FRAME
100 square feet
C
FRBAY FRAME BAY
10 square feet
D
1S FR ONE STORY FRAME
432 square feet
E
MA STOOP/TERR MAS STOOP
352 square feet
Parcel Images
Please note:
this tab is for informational purposes only and may not show all delinquencies, see the Taxes tab for more accurate delinquent taxes due.