Elected Officials
Courts
Departments
Initiatives
Open Government
About
Login / Register
Home
/
Property & Tax Records
/
Property Records
/
Property & Tax Search
/
Parcel Profile
/
Print View
Search for Another Parcel
Parcel Profile
Historical Card
Sketches
Photos
Tax Map
Taxes
Print View
Print This Page
Address: 3641 WILLOW RD
Parcel: 33006022000100
Parcel Profile
Address
3641 | WILLOW | RD
Street Status
PAVED | SIDEWALK
School District
MILLCREEK SCHOOL
Acreage
0.4390
Classification
R
Land Use Code
SINGLE FAMILY
Legal Description
3641 WILLOW RD 188.28 X 152.12 IRR
Square Feet
2240
Topo
LEVEL
Utility
ALL PUBLIC
Zoning
Please contact your municipal zoning officer
Deed Book
2018
Deed Page
009267
2026 Tax Values
Land Value / Taxable
25,300 / 25,300.00
Building Value / Taxable
98,030 / 98,030.00
Total Value / Taxable
123,330 / 123,330.00
Clean & Green
Inactive
Homestead Status
Inactive
Farmstead Status
Inactive
Lerta Amount
0
Lerta Expiration Year
0
Residential Data
Card 1
Style
OLD STYLE
Basement
FULL
Year Built
1937
Exterior Wall
FRAME
Total Living Area
2240
Full Baths
1
Half Baths
1
Fuel Type
GAS
Heating
CENTRAL
Heating System
HOT WATER
Stories
2.0
Total Bedrooms
3
Total Family Rooms
0
Total Rooms
7
Fireplaces
0
Other Buildings & Yards
No OBY Data Found
Sales History
Sale Date
Type
Price
Book / Page
Other Info
5/16/2018
LAND & BUILDING
159000
2018 / 009267
SPECIAL WARRANTY DEED
3/14/2007
LAND & BUILDING
97000
1400 / 2107
WARRANTY/SURVIVORSHIP DEED
4/8/1969
0
1000 / 0027
8/16/1952
0
0630 / 0209
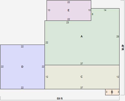
Parcel Sketches
Residential Card 1
A
MAIN
898 square feet
B
MA STOOP/TERR MAS STOOP
21 square feet
C
1S FR ONE STORY FRAME
444 square feet
D
FR GR FRAME GARAGE
484 square feet
E
EFP ENCL FRAME PORCH
220 square feet
Parcel Images
Please note:
this tab is for informational purposes only and may not show all delinquencies, see the Taxes tab for more accurate delinquent taxes due.