Elected Officials
Courts
Departments
Initiatives
Open Government
About
Login / Register
Home
/
Property & Tax Records
/
Property Records
/
Property & Tax Search
/
Parcel Profile
/
Print View
Search for Another Parcel
Parcel Profile
Historical Card
Sketches
Photos
Tax Map
Taxes
Print View
Print This Page
Address: 408 BEACHGROVE DR
Parcel: 33006023000200
Parcel Profile
Address
408 | BEACHGROVE | DR
Street Status
PAVED | SIDEWALK
School District
MILLCREEK SCHOOL
Acreage
0.2640
Classification
R
Land Use Code
MULTIPLE DWELLINGS
Legal Description
408 BEACHGROVE DR 60 X 115 I
Square Feet
1496
Topo
LEVEL
Utility
ALL PUBLIC
Zoning
Please contact your municipal zoning officer
Deed Book
1373
Deed Page
0081
2026 Tax Values
Land Value / Taxable
23,700 / 23,700.00
Building Value / Taxable
106,400 / 106,400.00
Total Value / Taxable
130,100 / 130,100.00
Clean & Green
Inactive
Homestead Status
Inactive
Farmstead Status
Inactive
Lerta Amount
0
Lerta Expiration Year
0
Residential Data
Card 1
Style
BUNGALOW
Basement
NONE
Year Built
1927
Exterior Wall
ALUMINUM/VINYL
Total Living Area
1016
Full Baths
2
Half Baths
0
Fuel Type
GAS
Heating
CENTRAL
Heating System
FORCED AIR
Stories
1.0
Total Bedrooms
2
Total Family Rooms
0
Total Rooms
6
Fireplaces
0
Card 2
Style
BUNGALOW
Basement
NONE
Year Built
1930
Exterior Wall
ALUMINUM/VINYL
Total Living Area
480
Full Baths
1
Half Baths
0
Fuel Type
GAS
Heating
CENTRAL
Heating System
FORCED AIR
Stories
1.0
Total Bedrooms
1
Total Family Rooms
0
Total Rooms
3
Fireplaces
0
Other Buildings & Yards
No OBY Data Found
Sales History
Sale Date
Type
Price
Book / Page
Other Info
12/3/1979
0
1373 / 0081
3/1/1966
0
0934 / 0400
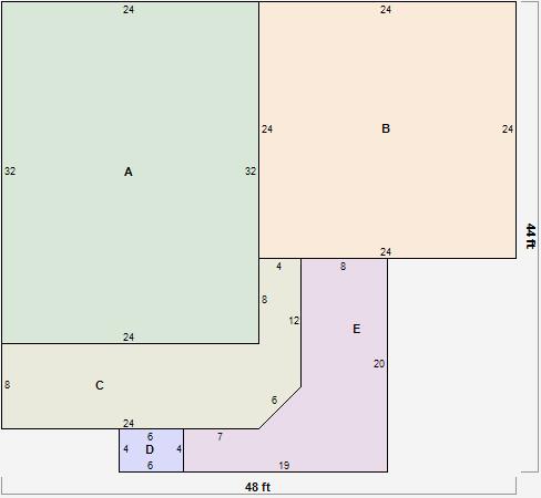
Parcel Sketches
Residential Card 1
A
MAIN
768 square feet
B
FR GR FRAME GARAGE
576 square feet
C
1S FR ONE STORY FRAME
248 square feet
D
OFP OPEN FRAME PORCH
24 square feet
E
OFP OPEN FRAME PORCH
212 square feet
Residential Card 2
A
MAIN
480 square feet
B
WDDCK WOOD DECKS
15 square feet
Parcel Images
Please note:
this tab is for informational purposes only and may not show all delinquencies, see the Taxes tab for more accurate delinquent taxes due.