Elected Officials
Courts
Departments
Initiatives
Open Government
About
Login / Register
Home
/
Property & Tax Records
/
Property Records
/
Property & Tax Search
/
Parcel Profile
/
Print View
Search for Another Parcel
Parcel Profile
Historical Card
Sketches
Photos
Tax Map
Taxes
Print View
Print This Page
Address: 309 BLACKSTONE DR
Parcel: 33006024002300
Parcel Profile
Address
309 | BLACKSTONE | DR
Street Status
PAVED | SIDEWALK
School District
MILLCREEK SCHOOL
Acreage
0.1157
Classification
R
Land Use Code
SINGLE FAMILY
Legal Description
309 BLACKSTONE DR 40 X 126
Square Feet
1612
Topo
LEVEL
Utility
ALL PUBLIC
Zoning
Please contact your municipal zoning officer
Deed Book
1487
Deed Page
2270
2026 Tax Values
Land Value / Taxable
19,400 / 19,400.00
Building Value / Taxable
101,930 / 101,930.00
Total Value / Taxable
121,330 / 121,330.00
Clean & Green
Inactive
Homestead Status
Inactive
Farmstead Status
Inactive
Lerta Amount
0
Lerta Expiration Year
0
Residential Data
Card 1
Style
RANCH
Basement
NONE
Year Built
1920
Exterior Wall
ALUMINUM/VINYL
Total Living Area
1612
Full Baths
2
Half Baths
0
Fuel Type
GAS
Heating
CENTRAL
Heating System
FORCED AIR
Stories
1.0
Total Bedrooms
4
Total Family Rooms
0
Total Rooms
6
Fireplaces
1
Other Buildings & Yards
No OBY Data Found
Sales History
Sale Date
Type
Price
Book / Page
Other Info
4/14/2008
LAND & BUILDING
140000
1487 / 2270
WARRANTY/SURVIVORSHIP DEED
5/27/2004
LAND & BUILDING
94000
1139 / 1716
DEED
3/8/2004
LAND & BUILDING
0
1112 / 2261
SHERIFF'S DED
4/16/2001
LAND & BUILDING
108000
765 / 1930
6/27/1995
0
0389 / 2102
9/15/1980
0
1398 / 0044
2/24/1976
0
1225 / 0591
10/5/1961
0
0846 / 0072
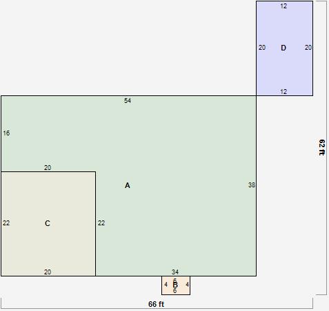
Parcel Sketches
Residential Card 1
A
MAIN
1612 square feet
B
MA STOOP/TERR MAS STOOP
24 square feet
C
FR GR FRAME GARAGE
440 square feet
D
FR GR FRAME GARAGE
240 square feet
Parcel Images
Please note:
this tab is for informational purposes only and may not show all delinquencies, see the Taxes tab for more accurate delinquent taxes due.