Elected Officials
Courts
Departments
Initiatives
Open Government
About
Login / Register
Home
/
Property & Tax Records
/
Property Records
/
Property & Tax Search
/
Parcel Profile
/
Print View
Search for Another Parcel
Parcel Profile
Historical Card
Sketches
Photos
Tax Map
Taxes
Print View
Print This Page
Address: 423 CLIFTON DR
Parcel: 33006026002600
Parcel Profile
Address
423 | CLIFTON | DR
Street Status
PAVED | SIDEWALK
School District
MILLCREEK SCHOOL
Acreage
0.3763
Classification
R
Land Use Code
SINGLE FAMILY
Legal Description
423 CLIFTON DR 60 X 139 IRR
Square Feet
1216
Topo
LEVEL
Utility
ALL PUBLIC
Zoning
Please contact your municipal zoning officer
Deed Book
2012
Deed Page
030331
2026 Tax Values
Land Value / Taxable
24,800 / 24,800.00
Building Value / Taxable
81,600 / 81,600.00
Total Value / Taxable
106,400 / 106,400.00
Clean & Green
Inactive
Homestead Status
Active
Farmstead Status
Inactive
Lerta Amount
0
Lerta Expiration Year
0
Residential Data
Card 1
Style
CONVENTIONAL
Basement
FULL
Year Built
1931
Exterior Wall
ALUMINUM/VINYL
Total Living Area
1216
Full Baths
2
Half Baths
0
Fuel Type
GAS
Heating
CENTRAL A/C
Heating System
FORCED AIR
Stories
1.5
Total Bedrooms
3
Total Family Rooms
0
Total Rooms
6
Fireplaces
1
Other Buildings & Yards
Description
Built
Width
Length
Area
FRAME OR CB DETACHED GARAGE
1931
31
24
744
Sales History
Sale Date
Type
Price
Book / Page
Other Info
11/5/2012
LAND & BUILDING
115000
2012 / 030331
DEED
8/1/1960
0
0827 / 0337
8/6/1951
0
0601 / 0159
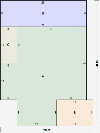
Parcel Sketches
Residential Card 1
A
MAIN
613 square feet
B
OFP OPEN FRAME PORCH 1S FR ONE STORY FRAME
88 square feet
C
OFP OPEN FRAME PORCH 1S FR ONE STORY FRAME
55 square feet
D
MA STOOP/TERR MAS STOOP
208 square feet
Parcel Images
Please note:
this tab is for informational purposes only and may not show all delinquencies, see the Taxes tab for more accurate delinquent taxes due.