Elected Officials
Courts
Departments
Initiatives
Open Government
About
Login / Register
Home
/
Property & Tax Records
/
Property Records
/
Property & Tax Search
/
Parcel Profile
/
Print View
Search for Another Parcel
Parcel Profile
Historical Card
Sketches
Photos
Tax Map
Taxes
Print View
Print This Page
Address: 317 FOREST DR
Parcel: 33006028001700
Parcel Profile
Address
317 | FOREST | DR
Street Status
PAVED | SIDEWALK
School District
MILLCREEK SCHOOL
Acreage
0.1865
Classification
R
Land Use Code
SINGLE FAMILY
Legal Description
317 FOREST DR 65 X 125
Square Feet
1992
Topo
LEVEL
Utility
ALL PUBLIC
Zoning
Please contact your municipal zoning officer
Deed Book
2013
Deed Page
019924
2026 Tax Values
Land Value / Taxable
21,400 / 21,400.00
Building Value / Taxable
94,900 / 94,900.00
Total Value / Taxable
116,300 / 116,300.00
Clean & Green
Inactive
Homestead Status
Active
Farmstead Status
Inactive
Lerta Amount
0
Lerta Expiration Year
0
Residential Data
Card 1
Style
CONVENTIONAL
Basement
FULL
Year Built
1927
Exterior Wall
FRAME
Total Living Area
1992
Full Baths
2
Half Baths
1
Fuel Type
GAS
Heating
CENTRAL
Heating System
FORCED AIR
Stories
2.0
Total Bedrooms
3
Total Family Rooms
0
Total Rooms
7
Fireplaces
1
Other Buildings & Yards
No OBY Data Found
Sales History
Sale Date
Type
Price
Book / Page
Other Info
7/31/2013
LAND & BUILDING
187000
2013 / 019924
DEED
4/28/2008
LAND & BUILDING
0
1491 / 0297
DEED
7/8/1996
LAND & BUILDING
100000
449 / 1432
2/3/1987
0
1667 / 0528
9/10/1971
0
1052 / 0433
7/21/1965
0
0922 / 0126
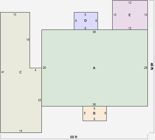
Parcel Sketches
Residential Card 1
A
MAIN
936 square feet
B
MA STOOP/TERR MAS STOOP
40 square feet
C
FR GR FRAME GARAGE
498 square feet
D
OFP OPEN FRAME PORCH
48 square feet
E
1S FR ONE STORY FRAME
120 square feet
Parcel Images
Please note:
this tab is for informational purposes only and may not show all delinquencies, see the Taxes tab for more accurate delinquent taxes due.