Elected Officials
Courts
Departments
Initiatives
Open Government
About
Login / Register
Home
/
Property & Tax Records
/
Property Records
/
Property & Tax Search
/
Parcel Profile
/
Print View
Search for Another Parcel
Parcel Profile
Historical Card
Sketches
Photos
Tax Map
Taxes
Print View
Print This Page
Address: 3118 20 OAKDALE PKWY
Parcel: 33016065000900
Parcel Profile
Address
3118 | 20 | OAKDALE | PKWY
Street Status
PAVED
School District
MILLCREEK SCHOOL
Acreage
0.3634
Classification
R
Land Use Code
MULTIPLE DWELLINGS
Legal Description
3118 20 OAKDALE PKWY 100 X 158.3 IRR
Square Feet
3027
Topo
LEVEL
Utility
ALL PUBLIC
Zoning
Please contact your municipal zoning officer
Deed Book
2018
Deed Page
025747
2026 Tax Values
Land Value / Taxable
24,700 / 24,700.00
Building Value / Taxable
90,300 / 90,300.00
Total Value / Taxable
115,000 / 115,000.00
Clean & Green
Inactive
Homestead Status
Active
Farmstead Status
Inactive
Lerta Amount
0
Lerta Expiration Year
0
Residential Data
Card 1
Style
SPLIT LEVEL
Basement
FULL
Year Built
1946
Exterior Wall
ALUMINUM/VINYL
Total Living Area
2336
Full Baths
2
Half Baths
0
Fuel Type
GAS
Heating
CENTRAL
Heating System
HOT WATER
Stories
2.0
Total Bedrooms
3
Total Family Rooms
1
Total Rooms
8
Fireplaces
1
Card 2
Style
OTHER
Basement
NONE
Year Built
1958
Exterior Wall
ALUMINUM/VINYL
Total Living Area
691
Full Baths
1
Half Baths
0
Fuel Type
GAS
Heating
CENTRAL
Heating System
FORCED AIR
Stories
1.0
Total Bedrooms
2
Total Family Rooms
0
Total Rooms
3
Fireplaces
1
Other Buildings & Yards
Description
Built
Width
Length
Area
FRAME OR CB DETACHED GARAGE
1946
22
27
594
Sales History
Sale Date
Type
Price
Book / Page
Other Info
12/14/2018
LAND & BUILDING
155000
2018 / 025747
FIDUCIARY DEED
7/18/2000
0
0715 / 1100
2/4/1963
0
0870 / 0370
9/24/1954
0
0684 / 0555
Parcel Sketches
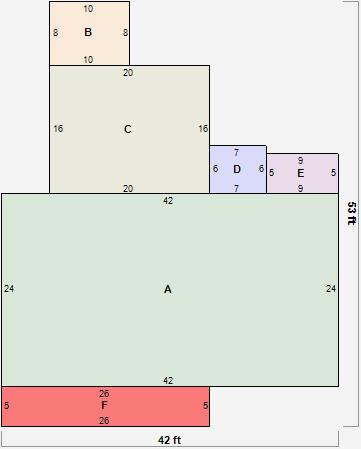
Residential Card 1
A
MAIN
1008 square feet
B
WDDCK WOOD DECKS
80 square feet
C
UNFIN BSMT BASEMENT UNFINISHED 1S FR ONE STORY FRAME
320 square feet
D
EFP ENCL FRAME PORCH
42 square feet
E
OFP OPEN FRAME PORCH
45 square feet
F
OFP OPEN FRAME PORCH
130 square feet
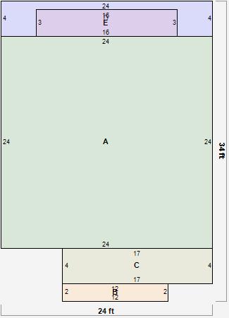
Residential Card 2
A
MAIN
576 square feet
B
WDDCK WOOD DECKS
24 square feet
C
OFP OPEN FRAME PORCH
68 square feet
D
WDDCK WOOD DECKS
96 square feet
E
WDDCK WOOD DECKS WDDCK WOOD DECKS
48 square feet
Parcel Images
Please note:
this tab is for informational purposes only and may not show all delinquencies, see the Taxes tab for more accurate delinquent taxes due.