Elected Officials
Courts
Departments
Initiatives
Open Government
About
Login / Register
Home
/
Property & Tax Records
/
Property Records
/
Property & Tax Search
/
Parcel Profile
/
Print View
Search for Another Parcel
Parcel Profile
Historical Card
Sketches
Photos
Tax Map
Taxes
Print View
Print This Page
Address: 621 MARSHALL DR
Parcel: 33017072000600
Parcel Profile
Address
621 | MARSHALL | DR
Street Status
PAVED
School District
MILLCREEK SCHOOL
Acreage
0.4327
Classification
R
Land Use Code
SINGLE FAMILY
Legal Description
621 MARSHALL DR 75.95 X 248.09
Square Feet
1676
Topo
LEVEL
Utility
ALL PUBLIC
Zoning
Please contact your municipal zoning officer
Deed Book
0073
Deed Page
1865
2026 Tax Values
Land Value / Taxable
25,200 / 25,200.00
Building Value / Taxable
101,480 / 101,480.00
Total Value / Taxable
126,680 / 126,680.00
Clean & Green
Inactive
Homestead Status
Active
Farmstead Status
Inactive
Lerta Amount
0
Lerta Expiration Year
0
Residential Data
Card 1
Style
BUNGALOW
Basement
FULL
Year Built
1936
Exterior Wall
ALUMINUM/VINYL
Total Living Area
1676
Full Baths
1
Half Baths
0
Fuel Type
GAS
Heating
CENTRAL A/C
Heating System
FORCED AIR
Stories
1.0
Total Bedrooms
4
Total Family Rooms
0
Total Rooms
8
Fireplaces
0
Other Buildings & Yards
Description
Built
Width
Length
Area
FOUR SIDE CLOSED WD POLE BLDG
2021
32
24
768
DETACHED OPEN FR PORCH
2021
4
32
128
Sales History
Sale Date
Type
Price
Book / Page
Other Info
12/21/1988
0
0073 / 1865
7/24/1986
0
1639 / 0522
10/22/1984
0
1557 / 0053
10/26/1970
0
1032 / 0301
5/17/1944
0
0445 / 0186
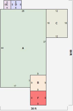
Parcel Sketches
Residential Card 1
A
MAIN
1081 square feet
B
EFP ENCL FRAME PORCH
81 square feet
C
WDDCK WOOD DECKS
192 square feet
D
EFP ENCL FRAME PORCH
30 square feet
E
WDDCK WOOD DECKS
20 square feet
F
WDDCK WOOD DECKS
72 square feet
Parcel Images
Please note:
this tab is for informational purposes only and may not show all delinquencies, see the Taxes tab for more accurate delinquent taxes due.