Elected Officials
Courts
Departments
Initiatives
Open Government
About
Login / Register
Home
/
Property & Tax Records
/
Property Records
/
Property & Tax Search
/
Parcel Profile
/
Print View
Search for Another Parcel
Parcel Profile
Historical Card
Sketches
Photos
Tax Map
Taxes
Print View
Print This Page
Address: 740 MARSHALL DR
Parcel: 33017078001600
Parcel Profile
Address
740 | MARSHALL | DR
Street Status
PAVED | SIDEWALK
School District
MILLCREEK SCHOOL
Acreage
0.6254
Classification
R
Land Use Code
SINGLE FAMILY
Legal Description
740 MARSHALL DR 106 X 256.5
Square Feet
1966
Topo
LEVEL
Utility
ALL PUBLIC
Zoning
Please contact your municipal zoning officer
Deed Book
1458
Deed Page
0342
2026 Tax Values
Land Value / Taxable
26,700 / 26,700.00
Building Value / Taxable
104,870 / 104,870.00
Total Value / Taxable
131,570 / 131,570.00
Clean & Green
Inactive
Homestead Status
Active
Farmstead Status
Inactive
Lerta Amount
0
Lerta Expiration Year
0
Residential Data
Card 1
Style
CONVENTIONAL
Basement
FULL
Year Built
1917
Exterior Wall
ALUMINUM/VINYL
Total Living Area
1966
Full Baths
2
Half Baths
0
Fuel Type
GAS
Heating
CENTRAL
Heating System
FORCED AIR
Stories
1.5
Total Bedrooms
5
Total Family Rooms
0
Total Rooms
8
Fireplaces
1
Other Buildings & Yards
No OBY Data Found
Sales History
Sale Date
Type
Price
Book / Page
Other Info
6/2/1982
0
1458 / 0342
7/11/1969
0
1006 / 0181
12/1/1925
0
0267 / 0512
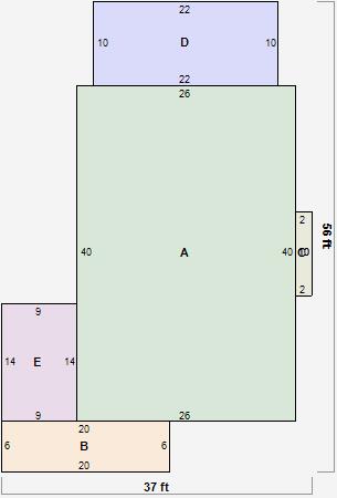
Parcel Sketches
Residential Card 1
A
MAIN
1040 square feet
B
OFP OPEN FRAME PORCH
120 square feet
C
FRBAY FRAME BAY
20 square feet
D
EFP ENCL FRAME PORCH EFP ENCL FRAME PORCH
220 square feet
E
1S FR ONE STORY FRAME
126 square feet
Parcel Images
Please note:
this tab is for informational purposes only and may not show all delinquencies, see the Taxes tab for more accurate delinquent taxes due.