Elected Officials
Courts
Departments
Initiatives
Open Government
About
Login / Register
Home
/
Property & Tax Records
/
Property Records
/
Property & Tax Search
/
Parcel Profile
/
Print View
Search for Another Parcel
Parcel Profile
Historical Card
Sketches
Photos
Tax Map
Taxes
Print View
Print This Page
Address: 818 MARSHALL DR
Parcel: 33017078001900
Parcel Profile
Address
818 | MARSHALL | DR
Street Status
PAVED
School District
MILLCREEK SCHOOL
Acreage
0.3068
Classification
R
Land Use Code
SINGLE FAMILY
Legal Description
818 MARSHALL DR 52 X 256.5
Square Feet
1049
Topo
LEVEL
Utility
ALL PUBLIC
Zoning
Please contact your municipal zoning officer
Deed Book
2016
Deed Page
018801
2026 Tax Values
Land Value / Taxable
24,300 / 24,300.00
Building Value / Taxable
54,100 / 54,100.00
Total Value / Taxable
78,400 / 78,400.00
Clean & Green
Inactive
Homestead Status
Inactive
Farmstead Status
Inactive
Lerta Amount
0
Lerta Expiration Year
0
Residential Data
Card 1
Style
RANCH
Basement
FULL
Year Built
1940
Exterior Wall
ALUMINUM/VINYL
Total Living Area
1049
Full Baths
1
Half Baths
0
Fuel Type
GAS
Heating
CENTRAL
Heating System
FORCED AIR
Stories
1.0
Total Bedrooms
3
Total Family Rooms
0
Total Rooms
5
Fireplaces
0
Other Buildings & Yards
Description
Built
Width
Length
Area
FRAME OR CB DETACHED GARAGE
1950
24
24
576
DETACHED OPEN FR PORCH
1960
12
24
288
REINFORCED CONCRETE POOL
1970
0
0
300
Sales History
Sale Date
Type
Price
Book / Page
Other Info
8/30/2016
LAND & BUILDING
0
2016 / 018801
QUIT CLAIM DEED
10/31/2012
LAND & BUILDING
0
2012 / 029891
FIDUCIARY DEED
3/29/1939
0
0393 / 0102
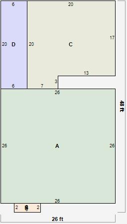
Parcel Sketches
Residential Card 1
A
MAIN
676 square feet
B
FRBAY FRAME BAY
12 square feet
C
1S FR ONE STORY FRAME
361 square feet
D
MA_PT CONC/MAS PATIO
120 square feet
Parcel Images
Please note:
this tab is for informational purposes only and may not show all delinquencies, see the Taxes tab for more accurate delinquent taxes due.