Elected Officials
Courts
Departments
Initiatives
Open Government
About
Login / Register
Home
/
Property & Tax Records
/
Property Records
/
Property & Tax Search
/
Parcel Profile
/
Print View
Search for Another Parcel
Parcel Profile
Historical Card
Sketches
Photos
Tax Map
Taxes
Print View
Print This Page
Address: 605 ARDMORE AVE
Parcel: 33018006000100
Parcel Profile
Address
605 | ARDMORE | AVE
Street Status
PAVED | SIDEWALK
School District
MILLCREEK SCHOOL
Acreage
0.2755
Classification
R
Land Use Code
SINGLE FAMILY
Legal Description
605 ARDMORE AVE 100 X 120
Square Feet
1296
Topo
LEVEL
Utility
ALL PUBLIC
Zoning
Please contact your municipal zoning officer
Deed Book
1270
Deed Page
0195
2026 Tax Values
Land Value / Taxable
24,000 / 24,000.00
Building Value / Taxable
88,000 / 88,000.00
Total Value / Taxable
112,000 / 112,000.00
Clean & Green
Inactive
Homestead Status
Active
Farmstead Status
Inactive
Lerta Amount
0
Lerta Expiration Year
0
Residential Data
Card 1
Style
RANCH
Basement
FULL
Year Built
1950
Exterior Wall
ALUMINUM/VINYL
Total Living Area
1296
Full Baths
1
Half Baths
1
Fuel Type
GAS
Heating
CENTRAL A/C
Heating System
FORCED AIR
Stories
1.0
Total Bedrooms
3
Total Family Rooms
0
Total Rooms
6
Fireplaces
2
Other Buildings & Yards
No OBY Data Found
Sales History
Sale Date
Type
Price
Book / Page
Other Info
7/1/1977
0
1270 / 0195
5/11/1977
0
1262 / 0539
9/18/1964
0
0903 / 0408
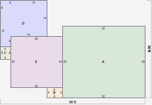
Parcel Sketches
Residential Card 1
A
MAIN
896 square feet
B
MA STOOP/TERR MAS STOOP
24 square feet
C
MA STOOP/TERR MAS STOOP
20 square feet
D
WDDCK WOOD DECKS
268 square feet
E
UNFIN BSMT BASEMENT UNFINISHED 1S FR ONE STORY FRAME
400 square feet
Parcel Images
Please note:
this tab is for informational purposes only and may not show all delinquencies, see the Taxes tab for more accurate delinquent taxes due.