Elected Officials
Courts
Departments
Initiatives
Open Government
About
Login / Register
Home
/
Property & Tax Records
/
Property Records
/
Property & Tax Search
/
Parcel Profile
/
Print View
Search for Another Parcel
Parcel Profile
Historical Card
Sketches
Photos
Tax Map
Taxes
Print View
Print This Page
Address: 829 ST CLAIR AVE
Parcel: 33018083002900
Parcel Profile
Address
829 | ST CLAIR | AVE
Street Status
PAVED
School District
MILLCREEK SCHOOL
Acreage
0.3074
Classification
R
Land Use Code
SINGLE FAMILY
Legal Description
829 ST CLAIR AVE 90X144.61IR
Square Feet
1675
Topo
LEVEL
Utility
ALL PUBLIC
Zoning
Please contact your municipal zoning officer
Deed Book
1422
Deed Page
1596
2026 Tax Values
Land Value / Taxable
24,300 / 24,300.00
Building Value / Taxable
108,310 / 108,310.00
Total Value / Taxable
132,610 / 132,610.00
Clean & Green
Inactive
Homestead Status
Active
Farmstead Status
Inactive
Lerta Amount
0
Lerta Expiration Year
0
Residential Data
Card 1
Style
CAPE
Basement
FULL
Year Built
1930
Exterior Wall
ALUMINUM/VINYL
Total Living Area
1675
Full Baths
2
Half Baths
0
Fuel Type
GAS
Heating
CENTRAL A/C
Heating System
FORCED AIR
Stories
1.0
Total Bedrooms
3
Total Family Rooms
0
Total Rooms
6
Fireplaces
0
Other Buildings & Yards
Description
Built
Width
Length
Area
FOUR SIDE CLOSED WD POLE BLDG
2018
33
26
858
Sales History
Sale Date
Type
Price
Book / Page
Other Info
6/12/2007
LAND & BUILDING
70000
1422 / 1596
DEED
6/12/2007
LAND & BUILDING
0
1422 / 1592
DEED
3/19/2007
LAND & BUILDING
0
1401 / 2289
TAX DEED
2/1/2007
LAND & BUILDING
0
1392 / 1814
SHERIFF'S DED
2/25/2003
LAND & BUILDING
0
0980 / 0034
QUIT CLAIM DEED
8/21/1997
LAND & BUILDING
77000
515 / 253
6/11/1990
0
0125 / 1434
8/16/1960
0
0826 / 0141
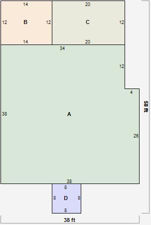
Parcel Sketches
Residential Card 1
A
MAIN
1396 square feet
B
EFP ENCL FRAME PORCH
168 square feet
C
WDDCK WOOD DECKS
240 square feet
D
OFP OPEN FRAME PORCH
64 square feet
Parcel Images
Please note:
this tab is for informational purposes only and may not show all delinquencies, see the Taxes tab for more accurate delinquent taxes due.