Elected Officials
Courts
Departments
Initiatives
Open Government
About
Login / Register
Home
/
Property & Tax Records
/
Property Records
/
Property & Tax Search
/
Parcel Profile
/
Print View
Search for Another Parcel
Parcel Profile
Historical Card
Sketches
Photos
Tax Map
Taxes
Print View
Print This Page
Address: 4696 W LAKE RD
Parcel: 33025115001700
Parcel Profile
Address
4696 | W | LAKE | RD
Street Status
PAVED
School District
MILLCREEK SCHOOL
Acreage
0.3124
Classification
R
Land Use Code
DWELLING W/ COMMERCIAL USE PRIMARY RES
Legal Description
4696 W LAKE RD 81.21 X 196.22 IRR
Square Feet
2930
Topo
LEVEL
Utility
ALL PUBLIC
Zoning
Please contact your municipal zoning officer
Deed Book
2011
Deed Page
005183
2026 Tax Values
Land Value / Taxable
24,300 / 24,300.00
Building Value / Taxable
75,700 / 75,700.00
Total Value / Taxable
100,000 / 100,000.00
Clean & Green
Inactive
Homestead Status
Inactive
Farmstead Status
Inactive
Lerta Amount
0
Lerta Expiration Year
0
Residential Data
Card 1
Style
OLD STYLE
Basement
FULL
Year Built
1920
Exterior Wall
BRICK
Total Living Area
2930
Full Baths
1
Half Baths
1
Fuel Type
GAS
Heating
CENTRAL
Heating System
FORCED AIR
Stories
1.5
Total Bedrooms
4
Total Family Rooms
0
Total Rooms
8
Fireplaces
1
Other Buildings & Yards
Description
Built
Width
Length
Area
FRAME OR CB DETACHED GARAGE
1940
18
24
432
Sales History
Sale Date
Type
Price
Book / Page
Other Info
3/4/2011
LAND & BUILDING
0
2011 / 005183
DEED
9/12/1989
0
0098 / 1628
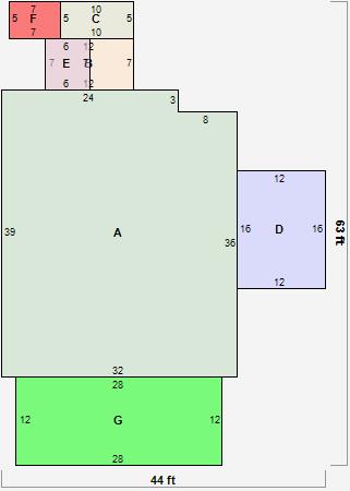
Parcel Sketches
Residential Card 1
A
MAIN
1224 square feet
B
1SMAS MASONRY 1S FR ONE STORY FRAME
84 square feet
C
1SMAS MASONRY EFP ENCL FRAME PORCH
50 square feet
D
CARPT CARPORT 1S FR ONE STORY FRAME
192 square feet
E
EFP ENCL FRAME PORCH 1S FR ONE STORY FRAME
42 square feet
F
EFP ENCL FRAME PORCH EFP ENCL FRAME PORCH
35 square feet
G
1S FR ONE STORY FRAME
336 square feet
Parcel Images
Please note:
this tab is for informational purposes only and may not show all delinquencies, see the Taxes tab for more accurate delinquent taxes due.