Elected Officials
Courts
Departments
Initiatives
Open Government
About
Login / Register
Home
/
Property & Tax Records
/
Property Records
/
Property & Tax Search
/
Parcel Profile
/
Print View
Search for Another Parcel
Parcel Profile
Historical Card
Sketches
Photos
Tax Map
Taxes
Print View
Print This Page
Address: 3941 OXER RD
Parcel: 33026149000500
Parcel Profile
Address
3941 | OXER | RD
Street Status
PAVED
School District
MILLCREEK SCHOOL
Acreage
0.2525
Classification
R
Land Use Code
SINGLE FAMILY
Legal Description
3941 OXER RD 137.94 X 125.67 I
Square Feet
1776
Topo
LEVEL
Utility
ALL PUBLIC
Zoning
Please contact your municipal zoning officer
Deed Book
2022
Deed Page
015614
2026 Tax Values
Land Value / Taxable
23,400 / 23,400.00
Building Value / Taxable
97,200 / 97,200.00
Total Value / Taxable
120,600 / 120,600.00
Clean & Green
Inactive
Homestead Status
Active
Farmstead Status
Inactive
Lerta Amount
0
Lerta Expiration Year
0
Residential Data
Card 1
Style
CONVENTIONAL
Basement
FULL
Year Built
1923
Exterior Wall
ALUMINUM/VINYL
Total Living Area
1776
Full Baths
1
Half Baths
1
Fuel Type
GAS
Heating
CENTRAL
Heating System
FORCED AIR
Stories
2.0
Total Bedrooms
4
Total Family Rooms
0
Total Rooms
7
Fireplaces
1
Other Buildings & Yards
Description
Built
Width
Length
Area
FRAME UTILITY SHED
2009
10
14
140
Sales History
Sale Date
Type
Price
Book / Page
Other Info
7/20/2022
LAND & BUILDING
215000
2022 / 015614
SPECIAL WARRANTY DEED
7/9/2021
LAND & BUILDING
124000
2021 / 017851
SHERIFF'S DED
8/7/2006
LAND & BUILDING
97000
1354 / 2209
WARRANTY/SURVIVORSHIP DEED
3/10/2005
LAND & BUILDING
0
1216 / 1217
WARRANTY/SURVIVORSHIP DEED
6/15/1977
0
1267 / 0271
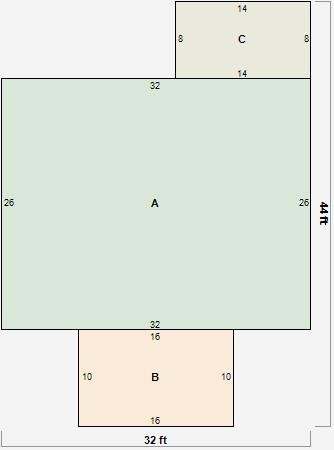
Parcel Sketches
Residential Card 1
A
MAIN
832 square feet
B
OFP OPEN FRAME PORCH
160 square feet
C
1S FR ONE STORY FRAME
112 square feet
Parcel Images
Please note:
this tab is for informational purposes only and may not show all delinquencies, see the Taxes tab for more accurate delinquent taxes due.