Elected Officials
Courts
Departments
Initiatives
Open Government
About
Login / Register
Home
/
Property & Tax Records
/
Property Records
/
Property & Tax Search
/
Parcel Profile
/
Print View
Search for Another Parcel
Parcel Profile
Historical Card
Sketches
Photos
Tax Map
Taxes
Print View
Print This Page
Address: 4009 OXER RD
Parcel: 33026157000300
Parcel Profile
Address
4009 | OXER | RD
Street Status
PAVED
School District
MILLCREEK SCHOOL
Acreage
0.2675
Classification
R
Land Use Code
SINGLE FAMILY
Legal Description
4009 OXER RD 68.25X190.22 IRR
Square Feet
934
Topo
LEVEL
Utility
ALL PUBLIC
Zoning
Please contact your municipal zoning officer
Deed Book
0282
Deed Page
1688
2026 Tax Values
Land Value / Taxable
23,800 / 23,800.00
Building Value / Taxable
64,070 / 64,070.00
Total Value / Taxable
87,870 / 87,870.00
Clean & Green
Inactive
Homestead Status
Active
Farmstead Status
Inactive
Lerta Amount
0
Lerta Expiration Year
0
Residential Data
Card 1
Style
RANCH
Basement
FULL
Year Built
1930
Exterior Wall
COMPOSITION
Total Living Area
934
Full Baths
1
Half Baths
0
Fuel Type
GAS
Heating
CENTRAL A/C
Heating System
FORCED AIR
Stories
1.0
Total Bedrooms
3
Total Family Rooms
0
Total Rooms
5
Fireplaces
0
Other Buildings & Yards
Description
Built
Width
Length
Area
FRAME OR CB DETACHED GARAGE
1986
24
24
576
Sales History
Sale Date
Type
Price
Book / Page
Other Info
7/29/1993
0
0282 / 1688
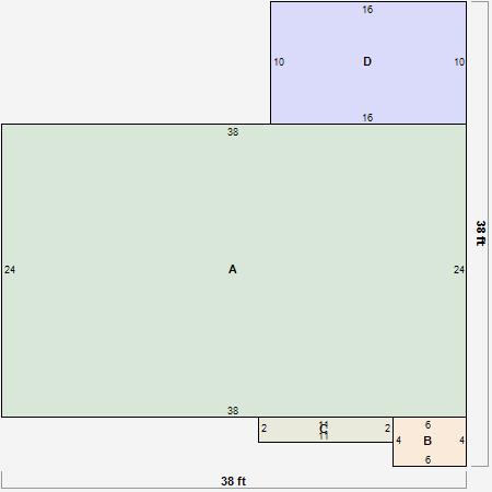
Parcel Sketches
Residential Card 1
A
MAIN
912 square feet
B
MA STOOP/TERR MAS STOOP
24 square feet
C
FRBAY FRAME BAY
22 square feet
D
OFP OPEN FRAME PORCH
160 square feet
Parcel Images
Please note:
this tab is for informational purposes only and may not show all delinquencies, see the Taxes tab for more accurate delinquent taxes due.